Проекты домов Оформить
ипотеку
Стройматериалы Участки Строительство
Выберите свой регион строительства
Крымский федеральный округ
Крым
Close mobile menu

Характеристики дома:

Площадь дома

157 m2

Кол-во жилых комнат

5
Стоимость проекта АР+КР
58,100 ₽

Хотите изменить планировку?

Отправьте запрос архитектору и обсудите с ним ваши идеи по перепланировке.

О проекте

Проект S3-157-1(Z128) - несмотря на компактный размер, этот дом очень вместителен и удачно подойдет для большой семьи.
Элегантный дизайн придется по вкусу как поклонникам классики, так и любителям современного стиля.
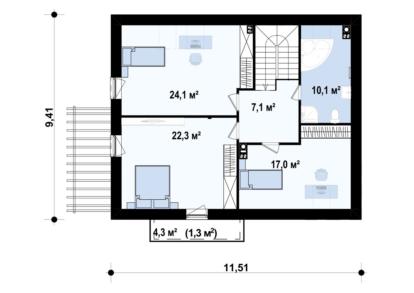
Дневная зона этого дома расположена на первом этаже. Здесь светлая большая гостиная удачно соседствует с открытой кухней. Из гостиной можно выйти прямо на террасу. Это решение планировки особенно понравится садоводам.
Ночная зона расположена на мансардном этаже. Тут уютно соседствуют три спальни, большой балкон и ванная комната. Первый этаж здания также оснащен санузлом.
Изюминкой этого дома можно назвать
мансардные окна, делает спальни уютными и хорошо освещенными.
В доме предусмотрены котельная и кладовая комната, которые делают жизнь хозяев более комфортной.

3D Модель

Дизайн интерьера

Понравился этот дом?

Отправьте нам сообщение, и мы ответим на все интересующие вас вопросы.

Аккредитованы в ведущих банках

Корзина
Ваша корзина пуста
Выберите в каталоге интересующий товар и нажмите кнопку "В корзину"
Отложенные товары
Отложенных товаров нет
Выберите в каталоге интересующий товар и нажмите кнопку "В избранное"
Заказать звонок