Проекты домов Оформить
ипотеку
Стройматериалы Участки Строительство
Выберите свой регион строительства
Крымский федеральный округ
Крым
Close mobile menu

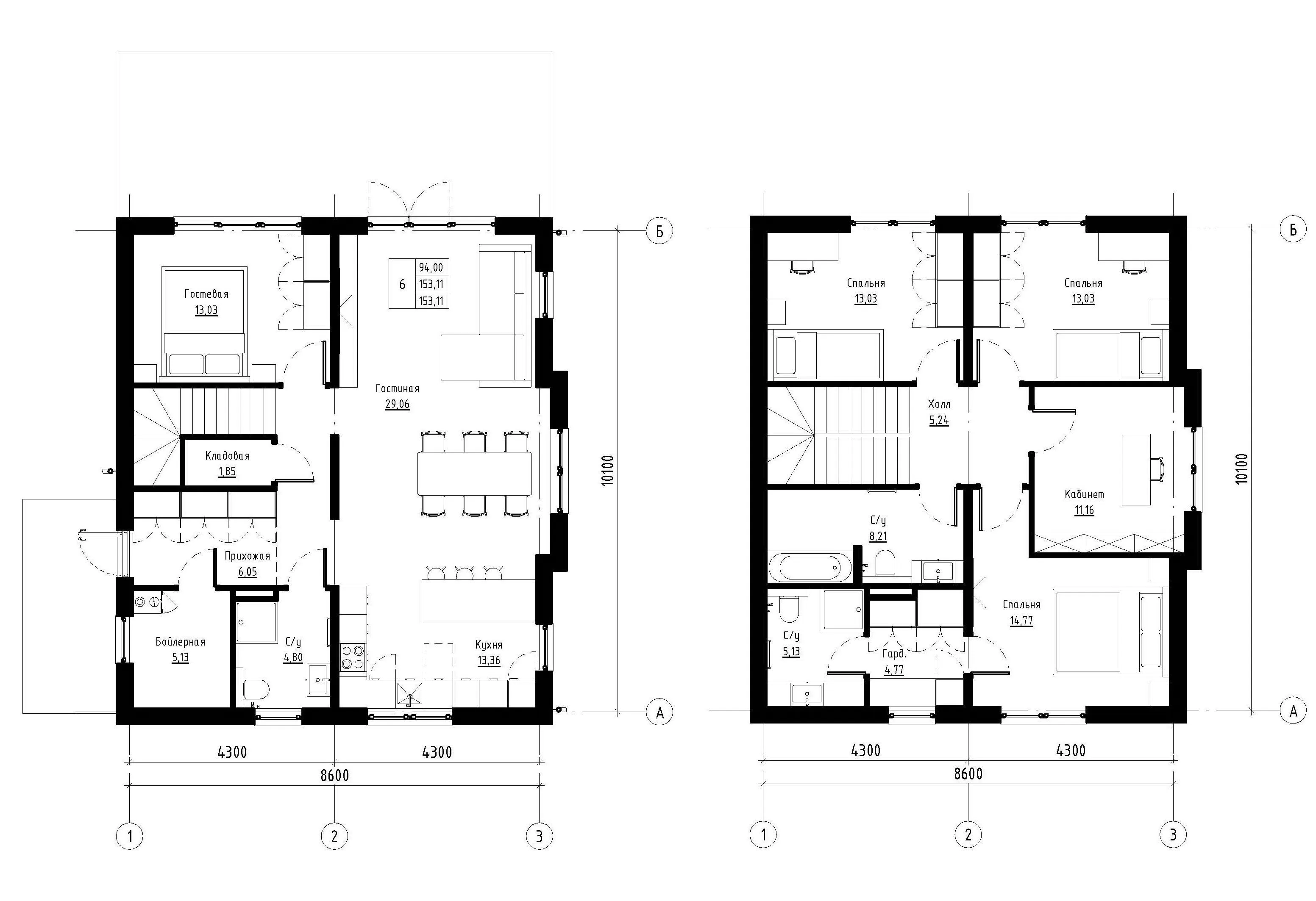
Характеристики дома:

Площадь дома

153,4 m2

Кол-во жилых комнат

6+
Проект с подрядом

Хотите изменить планировку?

Отправьте запрос архитектору и обсудите с ним ваши идеи по перепланировке.

О проекте

КОНСТРУКТИВНЫЕ РЕШЕНИЯ, ПРИНЯТЫЕ В ПРОЕКТЕ:

Плитный фундамент с ростверком. Ростверк - монолитный железобетонный.

Наружные стены - трехслойные наружные панели заводского производства толщиной 370 мм. В том числе несущий слой 140 мм бетон класса В25 морозостойкостью не менее F 100, 150 мм утеплитель - трехслойные плиты ПСБ-С марки М-25 в  соответствии с требованиями ГОСТ 15588-2014. Облицовка термопанелями толщиной 40 мм.

Внутренние стены и перегородки - панели заводского производства толщиной 180, 120 и 80 мм из бетона класса В25.

Лестница сборная из двух элементов - железобетон класса В25.

Полы первого этажа - монолитные железобетонные бетонные по грунту с утепляющим слоем из пенополистерона с покрытием керамической плиткой и паркетными досками; Полы второго этажа - плиты многопустотные толщиной 220 мм.

Аккредитованы в ведущих банках

Корзина
Ваша корзина пуста
Выберите в каталоге интересующий товар и нажмите кнопку "В корзину"
Отложенные товары
Отложенных товаров нет
Выберите в каталоге интересующий товар и нажмите кнопку "В избранное"
Заказать звонок