Проекты домов Оформить
ипотеку
Стройматериалы Участки Строительство
Выберите свой регион строительства
Крымский федеральный округ
Крым
Close mobile menu

Характеристики дома:

Площадь дома

178 m2

Кол-во жилых комнат

5
Стоимость проекта АР+КР
61,700 ₽

Хотите изменить планировку?

Отправьте запрос архитектору и обсудите с ним ваши идеи по перепланировке.

О проекте

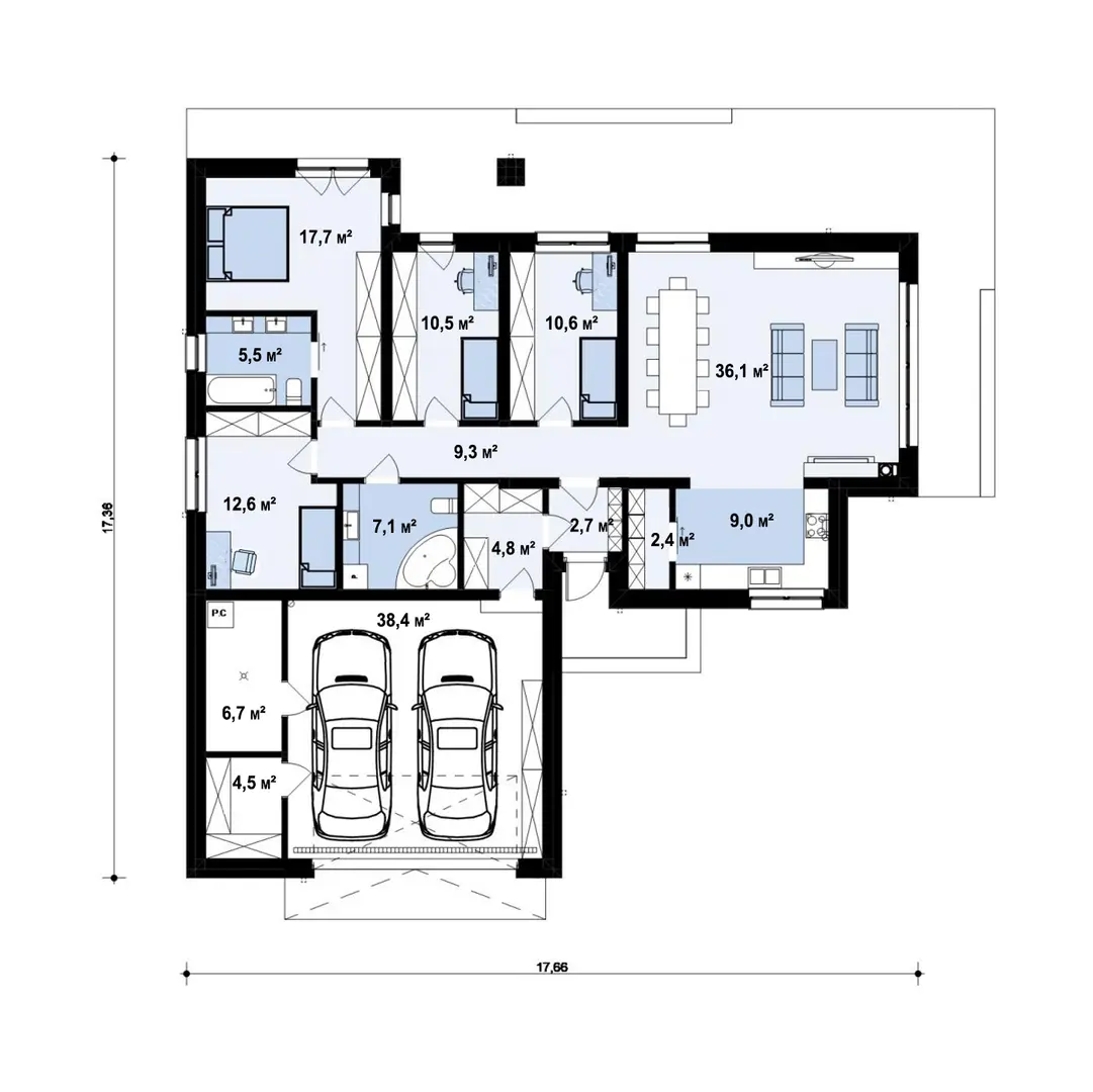
S3-178 (Z402 35). Это строгий и статный, но в то же время уютный и функциональный одноэтажный дом для большой семьи. Целых четыре спальни, гараж на два автомобиля и большое панорамное окно гостиной – что ещё нужно?

Заезжаем в гараж (там есть дополнительная кладовая для хранения вещей), оставляем автомобиль и проходим в дом через гардеробную. Направо – внушительных размеров кухня-гостиная, которая закроет все ваши потребности – от приёма пищи до просмотра любимого сериала. В этом помещении очень много света за счёт панорамного окна, которое ещё и визуально увеличивает пространство.

В ночной зоне дома расположилась мастер-спальня с собственной ванной комнатой и ещё три детские комнаты, для которых спроектирована еще одна ванная комната. Подытоживая, можно однозначно сказать, что в этом доме есть всё для комфортной жизни большой семьи. Решение за вами – а мы возьмём на себя всё остальное. Звоните!

Аккредитованы в ведущих банках

Корзина
Ваша корзина пуста
Выберите в каталоге интересующий товар и нажмите кнопку "В корзину"
Отложенные товары
Отложенных товаров нет
Выберите в каталоге интересующий товар и нажмите кнопку "В избранное"
Заказать звонок