Проекты домов Оформить
ипотеку
Стройматериалы Участки Строительство
Выберите свой регион строительства
Крымский федеральный округ
Крым
Close mobile menu

Характеристики дома:

Площадь дома

179 m2

Кол-во жилых комнат

5
Стоимость проекта АР+КР
58,100 ₽

Хотите изменить планировку?

Отправьте запрос архитектору и обсудите с ним ваши идеи по перепланировке.

О проекте

S3-179-6 (Z370) - Это функциональный коттедж с мансардным этажом и пристроенным гаражом, из которого можно попасть прямо в дом. Постройка имеет простую прямоугольную форму и легко размещается на любом участке. Мансарда позволяет уменьшить высоту, но разместить внутри жилые комнаты для большой семьи. 

Большую часть первого этажа занимает гостиная, объединенная с кухней. В одном из углов свободно помещается обеденный стол для семейных ужинов и дружеских посиделок. Хранить запасы и домашнюю консервацию можно в отдельной кладовой. 

На первом этаже помещается также просторный санузел и дополнительная жилая комната. Ее легко трансформировать в кабинет или спальню для тех, кому тяжело подниматься наверх. 

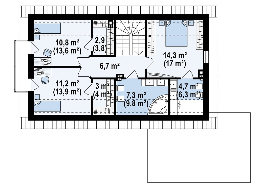
На верхнем уровне находятся сантехническое помещение и две спальни для детей с собственными гардеробными и выходами на балкон. Спальня владельцев имеет отдельную ванную комнату. 

3D Модель

Аккредитованы в ведущих банках

Корзина
Ваша корзина пуста
Выберите в каталоге интересующий товар и нажмите кнопку "В корзину"
Отложенные товары
Отложенных товаров нет
Выберите в каталоге интересующий товар и нажмите кнопку "В избранное"
Заказать звонок