Проекты домов Оформить
ипотеку
Стройматериалы Участки Строительство
Выберите свой регион строительства
Крымский федеральный округ
Крым
Close mobile menu

Характеристики дома:

Площадь дома

166 m2

Кол-во жилых комнат

5
Стоимость проекта ЭП
18,000 ₽

Хотите изменить планировку?

Отправьте запрос архитектору и обсудите с ним ваши идеи по перепланировке.

О проекте

S-166. Перед вами современный двухэтажный коттедж с террасой. Ночная зона предполагает три полноценных спальни, а вкупе с гостевой комнатой на первом этаже в таком строении может проживать большая семья из 6 человек.
Начнём прямо со входа: что примечательно, на первом этаже, справа от входа, две комнаты отведены под кладовые. Одна может послужить гардеробным помещением, вторую можно оборудовать в условную прачечную. Как было сказано выше, есть гостевая комната и полноценный санузел с душевой кабиной. А главное помещение первого этажа – это конечно 44-метровая кухня, совмещенная с гостиной. Здесь поместится и модный нынче остров с барными стульями, и полноценный обеденный стол, и диван с телевизором для вечерних просмотров фильмов и сериалов. А в хорошую погоду из гостиной можно выйти на террасу и насладиться чашкой чая на свежем воздухе.
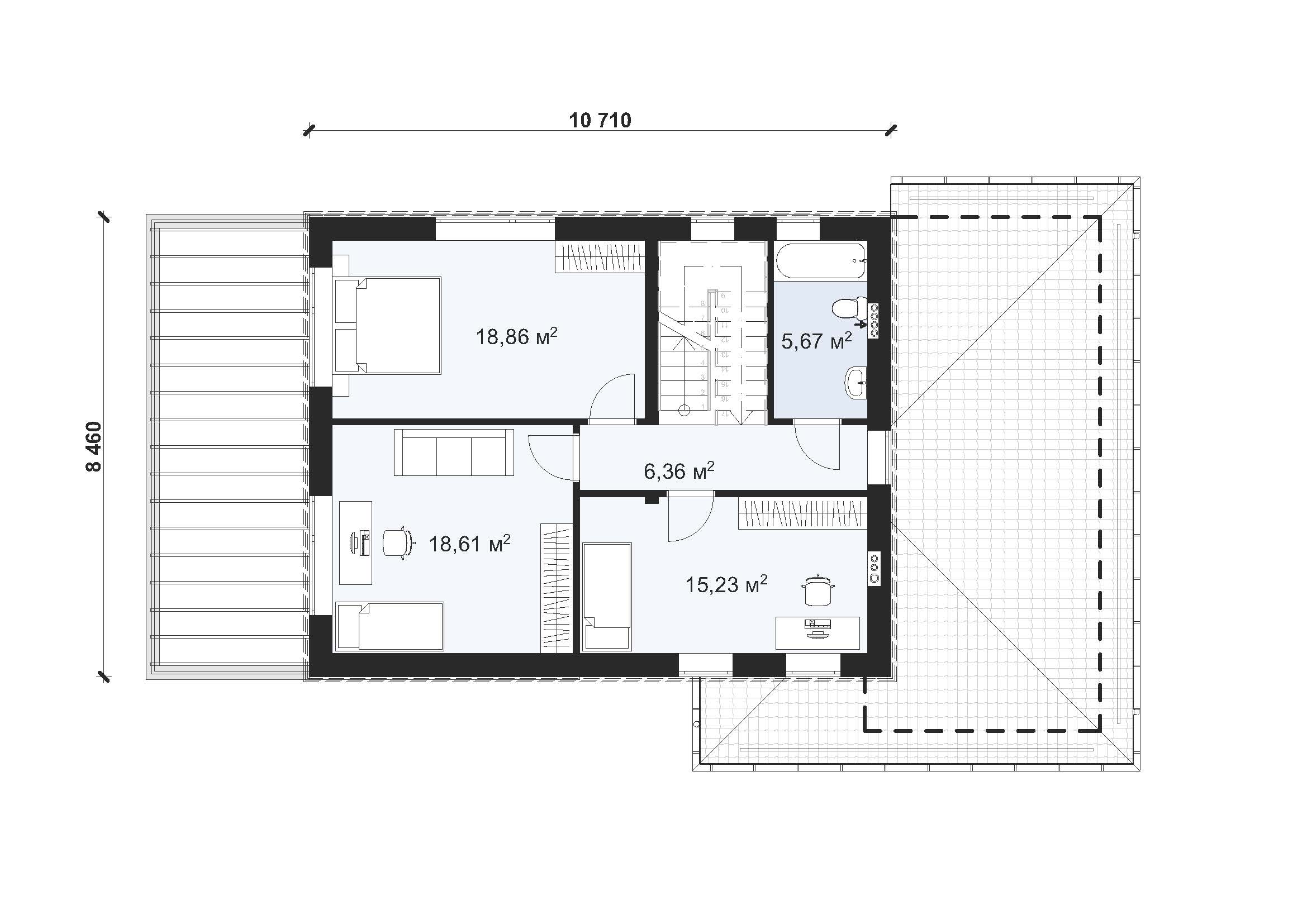
Второй этаж состоит из трёх спален и ванной комнаты. Причем размеры этажа позволили сделать каждую из комнат по-настоящему просторной: там помимо кровати спокойно поместится и шкаф, и рабочее место.

Аккредитованы в ведущих банках

Корзина
Ваша корзина пуста
Выберите в каталоге интересующий товар и нажмите кнопку "В корзину"
Отложенные товары
Отложенных товаров нет
Выберите в каталоге интересующий товар и нажмите кнопку "В избранное"
Заказать звонок