Проекты домов Оформить
ипотеку
Стройматериалы Участки Строительство
Выберите свой регион строительства
Крымский федеральный округ
Крым
Close mobile menu

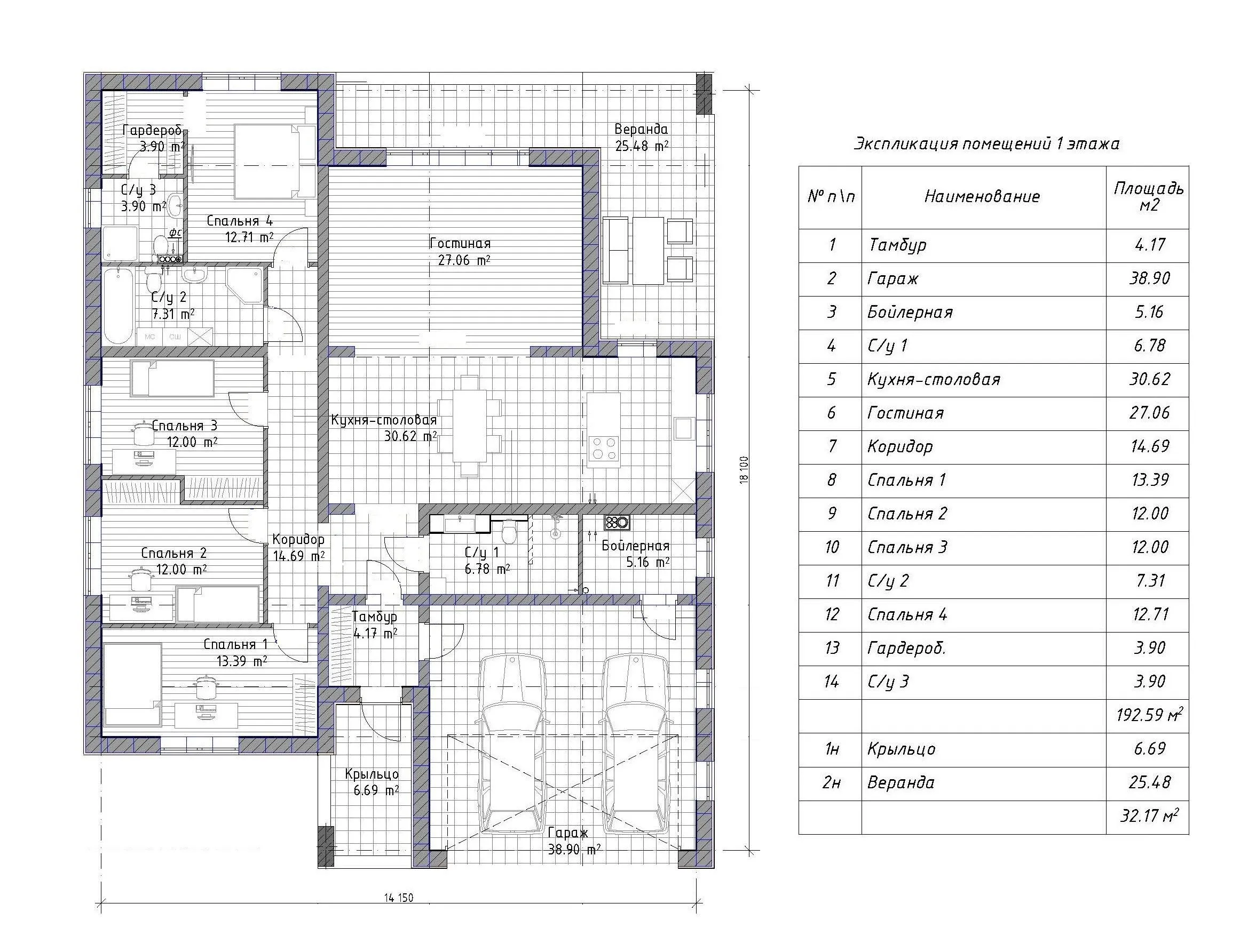
Характеристики дома:

Площадь дома

218,1 m2

Кол-во жилых комнат

6+
Стоимость проекта АР+КР
34,900 ₽

Хотите изменить планировку?

Отправьте запрос архитектору и обсудите с ним ваши идеи по перепланировке.

О проекте

S-192. Перед вами ультимативный загородный дом: просторный, функциональный, с гаражом на два автомобиля и четырьмя спальными комнатами для большой семьи.
Ставим автомобиль в гараж, минуя непогоду, и сразу попадаем в теплый дом. Тут же видим первую ванную комнату и главное общее пространство дома – кухню, совмещенную с гостиную и обеденной зоной. Именно здесь вся семья будет собираться сперва на приём пищи, а потом и на совместный просмотр любимых фильмов и сериалов. Ну а в хорошую погоду время можно проводить и на веранде, которая примыкает к зоне гостиной.
Ночная зона тоже несёт в себе много интересного. Здесь есть мастер-спальня с собственным гардеробом и санузлом. Кроме этого, для проживающих спроектированы еще три спальни и один большой санузел. Словом – места хватит для всех!

Аккредитованы в ведущих банках

Корзина
Ваша корзина пуста
Выберите в каталоге интересующий товар и нажмите кнопку "В корзину"
Отложенные товары
Отложенных товаров нет
Выберите в каталоге интересующий товар и нажмите кнопку "В избранное"
Заказать звонок