Проекты домов Оформить
ипотеку
Стройматериалы Участки Строительство
Выберите свой регион строительства
Крымский федеральный округ
Крым
Close mobile menu

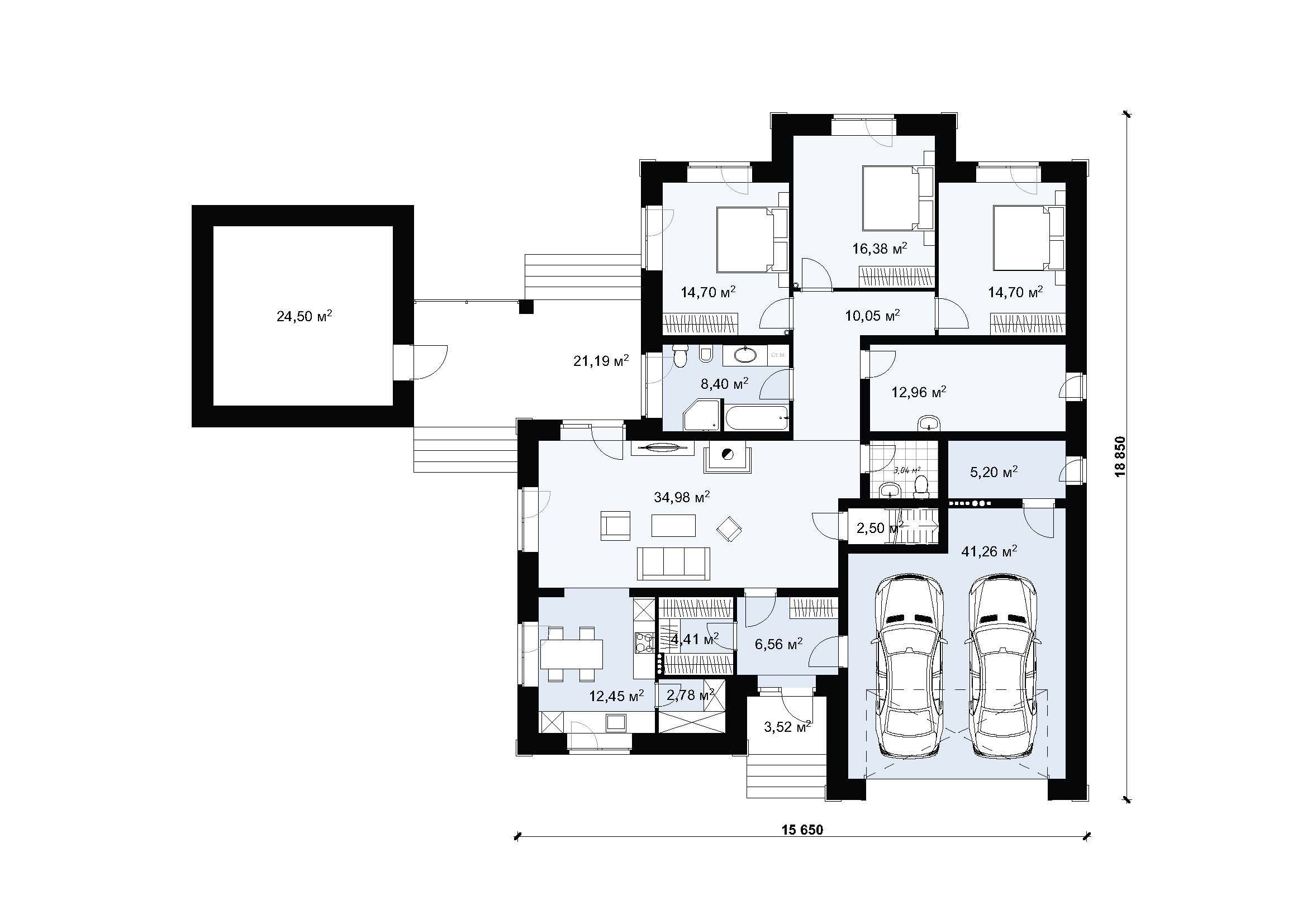
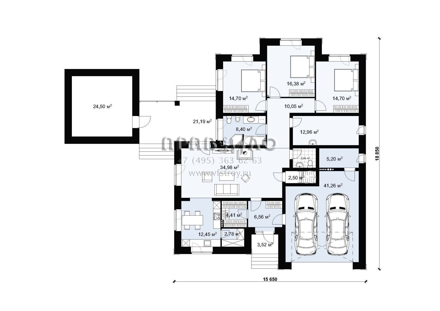
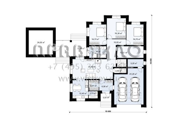
Характеристики дома:

Площадь дома

278,9 m2

Кол-во жилых комнат

5
Стоимость проекта АР+КР
44,900 ₽

Хотите изменить планировку?

Отправьте запрос архитектору и обсудите с ним ваши идеи по перепланировке.

О проекте

S-257. Этот дом представляет из себя просторный одноэтажный коттедж с гаражом на два автомобиля. Статусный внешне и уютный внутри, этот дом станет отличным выбором для семьи с двумя детьми.
Заезжаем в гараж, оставляем машину в тепле и сразу проходим в прихожую. Здесь можно сразу повесить верхнюю одежду в просторной гардеробной. Далее мы попадаем в центральную зону «дневной» части дома – гостиную, частично совмещенную с кухней. Кухня хотя и продолжает пространство гостиной, всё равно находится как бы за углом, скрывая процесс готовки от гостей. А еще на кухне в отдельной нише есть приятная кладовая для кухонной утвари. Для этой части дома предусмотрен отдельный санузел.
В зоне ночного отдыха спроектированы три спальни и большая ванная комната. А еще здесь есть комната свободного назначения – на плане она обозначена как «мастерская», но по Вашему усмотрению может стать как домашним офисом, так и детской. Или чем-либо еще. А завершает композицию мансарда, где есть складское пространство для всех ваших вещей. Недостатка в местах хранения точно не будет.
Бонус: предусмотренная проектом баня, соединенная с домом переходом в виде крытой террасы.

3D Модель

Аккредитованы в ведущих банках

Корзина
Ваша корзина пуста
Выберите в каталоге интересующий товар и нажмите кнопку "В корзину"
Отложенные товары
Отложенных товаров нет
Выберите в каталоге интересующий товар и нажмите кнопку "В избранное"
Заказать звонок