Проекты домов Оформить
ипотеку
Стройматериалы Участки Строительство
Выберите свой регион строительства
Крымский федеральный округ
Крым
Close mobile menu

Характеристики дома:

Площадь дома

67.74 m2

Кол-во жилых комнат

3
Стоимость проекта ЭП
14,000 ₽

Хотите изменить планировку?

Отправьте запрос архитектору и обсудите с ним ваши идеи по перепланировке.

О проекте

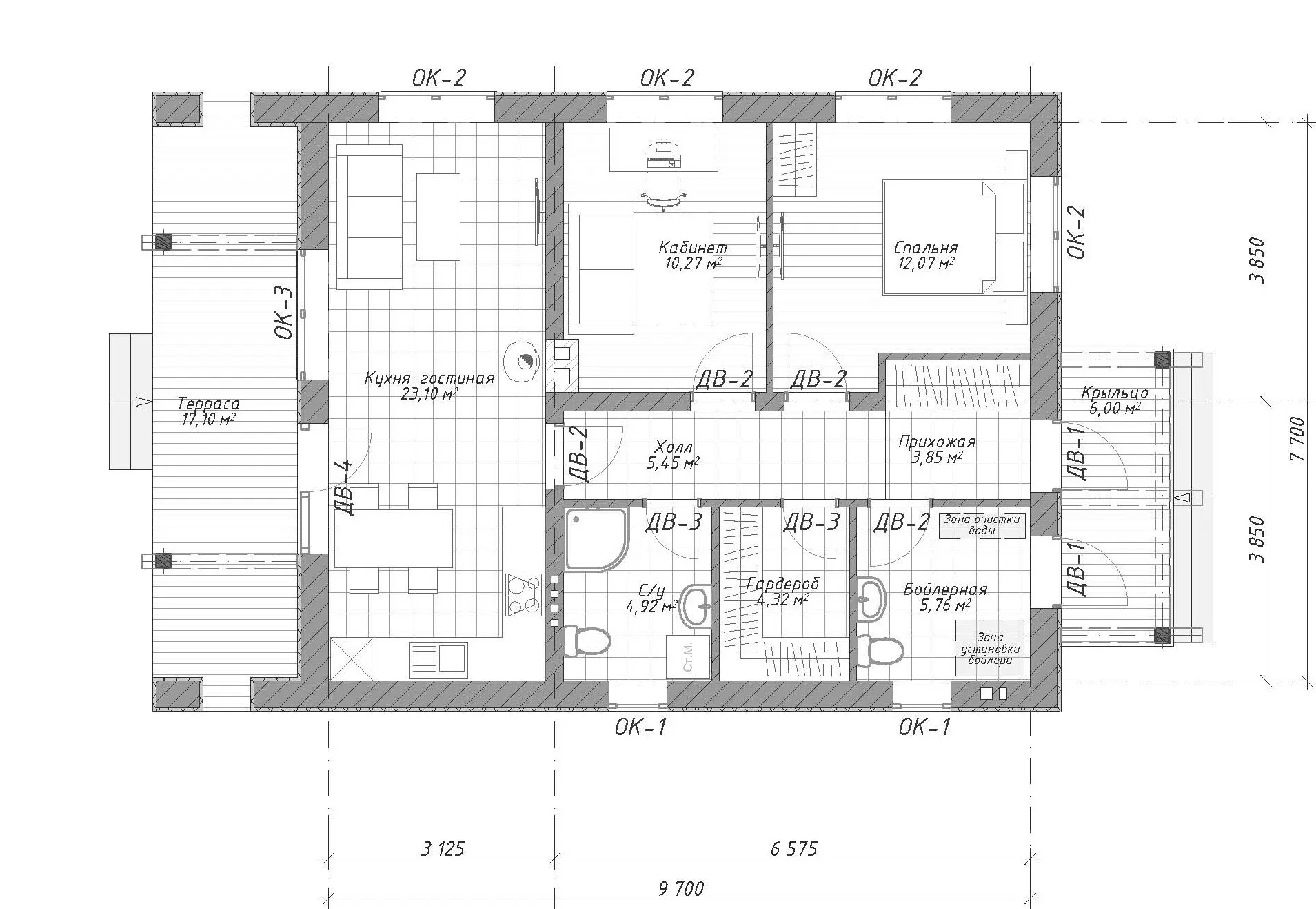
S-70. Вашему вниманию – проект компактного дома для участков небольшого размера. Несмотря на сравнительно небольшой метраж, в этом доме есть всё, что необходимо для комфортной загородной жизни.
При входе можно оставить верхнюю одежду или сразу пройти в гардеробную и раздеться уже там. Через стену от гардеробной расположилась ванная комната, а напротив – две комнаты: одна спроектирована как кабинет, вторая – как спальня. В целом, из кабинета можно сделать еще одну спальню – всё зависит от Вас и Ваших потребностей. Ну и наконец – кухня-гостиная, плавно перетекающая в небольшую террасу. Это классическая компоновка пространства, где столовая зона соседствует с диванно-телевизорной, создавая ощущение объема и открытого пространства. Ну а терраса всегда будет пользоваться популярностью, особенно в погожие дни.

Аккредитованы в ведущих банках

Корзина
Ваша корзина пуста
Выберите в каталоге интересующий товар и нажмите кнопку "В корзину"
Отложенные товары
Отложенных товаров нет
Выберите в каталоге интересующий товар и нажмите кнопку "В избранное"
Заказать звонок