Проекты домов Оформить
ипотеку
Стройматериалы Участки Строительство
Выберите свой регион строительства
Крымский федеральный округ
Крым
Close mobile menu

Характеристики дома:

Площадь дома

149,56 m2

Кол-во жилых комнат

5
Стоимость проекта АР+КР
40,000 ₽

Хотите изменить планировку?

Отправьте запрос архитектору и обсудите с ним ваши идеи по перепланировке.

О проекте

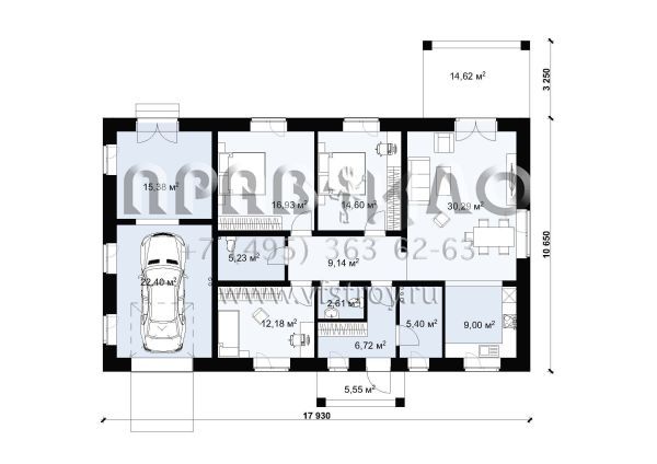
S-150. Перед Вами красивый и строгий одноэтажный коттедж с кирпичной облицовкой, многоскатной крышей и гаражом на один автомобиль. Такой дом идеально подойдет для семьи с двумя детьми.
Прежде чем ознакомиться непосредственного с домом, необходимо пару слов сказать про гараж. Помимо самого парковочного места на один автомобиль в этой части дома предусмотрели и складское помещение – там можно хранить колёса, автомобильные запчасти и прочие вещи, полезные в быту. В самом доме главное помещение – это конечно кухня-гостиная, естественным продолжением которой является терраса. Это общее пространство призвано собирать всю семью под одной крышей, где каждый найдет, чем ему заняться – будь то готовка, просмотр сериала или и всё сразу.
Ночная зона коттеджа, в свою очередь, предусматривает три спальные комнаты и два санузла. Гостиная зона и ночная зона находятся в отдалении друг от друга и отделены стеной. Поэтому даже в случае шумного времяпрепровождения в общем пространстве отдельные члены семьи смогут спокойно отдыхать в своих спальнях.

3D Модель

Аккредитованы в ведущих банках

Корзина
Ваша корзина пуста
Выберите в каталоге интересующий товар и нажмите кнопку "В корзину"
Отложенные товары
Отложенных товаров нет
Выберите в каталоге интересующий товар и нажмите кнопку "В избранное"
Заказать звонок