Проекты домов Оформить
ипотеку
Стройматериалы Участки Строительство
Выберите свой регион строительства
Крымский федеральный округ
Крым
Close mobile menu

Характеристики дома:

Площадь дома

140 m2

Кол-во жилых комнат

5
Стоимость проекта АР+КР
37,000 ₽

Хотите изменить планировку?

Отправьте запрос архитектору и обсудите с ним ваши идеи по перепланировке.

О проекте

Дом общей площадью 140 кв м прямоугольной формы, выполнен из бревна 240 мм. Конструкция крыши - простая двухскатная. Строительство здания осуществляется на свайно-ростверковом фундаменте. Вход в дом осуществляется с террасы. Крыша над террасой является продолжением основной крыши, что является преимуществом: меньше изломов и стыков - легче работа по монтажу и такой вариант делает ее более надежной в эксплуатации.

С террасы мы попадаем в небольшой, но функциональный тамбур 4.86 кв м, из которого имеется вход в котельную, с дополнительным входом с улицы. Площадь котельной 4.86 кв м, При выходе из тамбура попадаем в холл, из которого сразу по правую руку открывается п-образная лестница. Днем на лестнице будет всегда светло благодаря специальному высокому окну.
Первый этаж занимают: гостиная около 19 кв м, кухня 17.89 кв м, площадь которой увеличена за счёт эркера. Эркер создаёт удобную подзону для размещения столовой. Так же на этаже имеется комната 10.29 кв м и небольшой с/у 3 кв м.
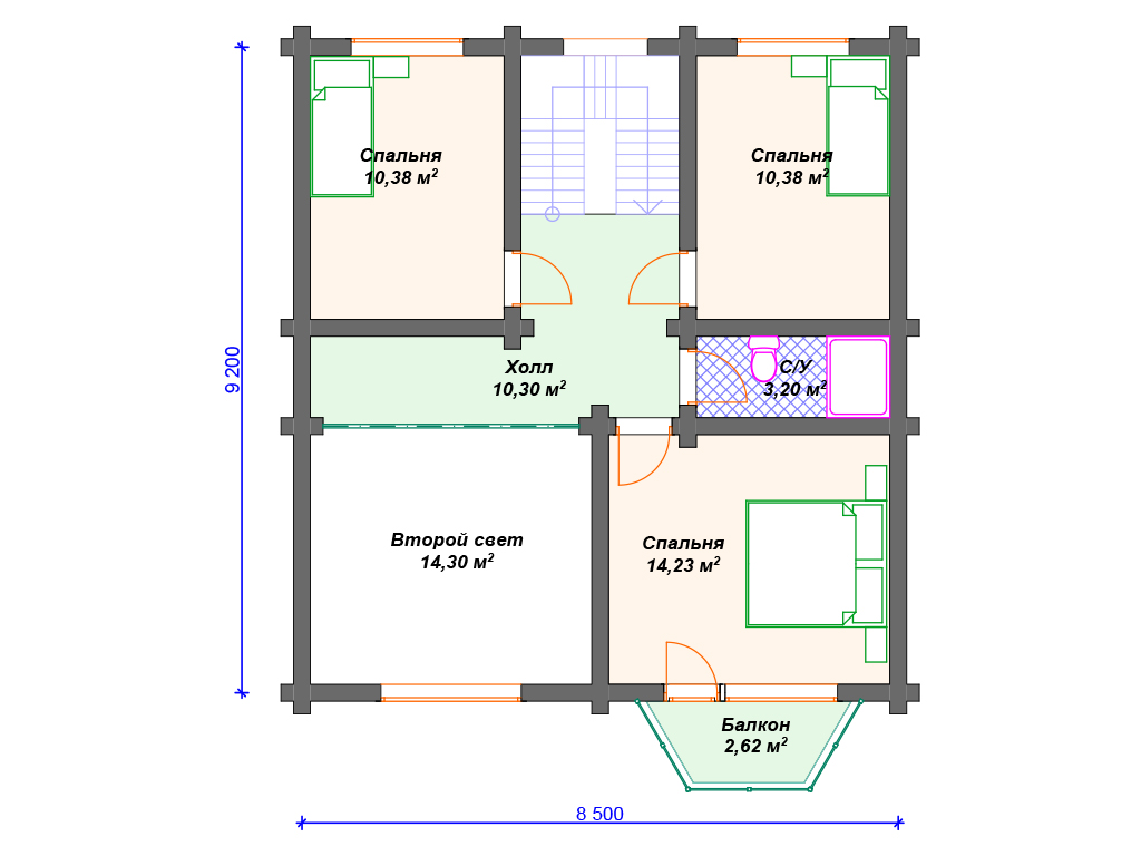
Поднимаемся на второй этаж и проходим в холл, в конце которого из которого открывается вид на «второй свет» расположенный над гостиной. На этаже три спальни и совмещённый с/у с душевой кабиной. Две спальни 10.38 кв м и 14.23 кв м. В большей по площади комнате предусмотрен выход на балкон.

Внутренне пространство дома распланировано очень рационально – на сравнительно небольшой площади есть все необходимое для комфортной жизни.

Аккредитованы в ведущих банках

Корзина
Ваша корзина пуста
Выберите в каталоге интересующий товар и нажмите кнопку "В корзину"
Отложенные товары
Отложенных товаров нет
Выберите в каталоге интересующий товар и нажмите кнопку "В избранное"
Заказать звонок