Проекты домов Оформить
ипотеку
Стройматериалы Участки Строительство
Выберите свой регион строительства
Крымский федеральный округ
Крым
Close mobile menu

Характеристики дома:

Площадь дома

131 m2

Кол-во жилых комнат

4
Стоимость проекта АР+КР
36,900 ₽

Хотите изменить планировку?

Отправьте запрос архитектору и обсудите с ним ваши идеи по перепланировке.

О проекте

Деревянный дом квадратной формы, выполнен из бревна диаметром 240 мм. Конструкция крыши - простая двускатная. Покрытие кровли - мягкая (гибкая черепица).

Входим в дом с небольшой террасы и попадаем в прихожую, из которой по левую руку ведёт дверь в с/у 6.6 кв м с душевым поддоном, а прямо дверь в холл дома, площадь которого 8 кв м. Правую сторону дома занимает гостиная 13 кв м и кухня 7.6 кв м. между ними небольшая перегородка для визуального разделения. Из гостиной предусмотрен выход на террасу 9.6 кв м. По левой стороне при входе в холл - спальня 14 кв м. Эту комнату можно использовать как гостевую или кабинет.
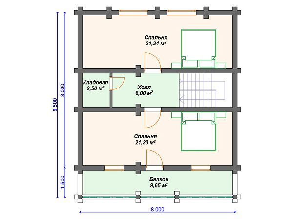
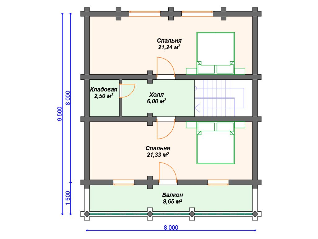
Лестница на 2-ой этаж очень удобно расположена в конце холла (на заднем фасаде дома).Поднимаемся на второй этаж по комфортной п-образной лестнице и попадаем в холл 6 кв м, из которого ведут двери в две спальни небольшую кладовую 2.5 кв м. Спальни равноценные по площади 21 кв м. Одна из них имеет выход на балкон.

Небольшой дом подойдёт для семьи из 3-4 человек.

Аккредитованы в ведущих банках

Корзина
Ваша корзина пуста
Выберите в каталоге интересующий товар и нажмите кнопку "В корзину"
Отложенные товары
Отложенных товаров нет
Выберите в каталоге интересующий товар и нажмите кнопку "В избранное"
Заказать звонок