Проекты домов Оформить
ипотеку
Стройматериалы Участки Строительство
Выберите свой регион строительства
Крымский федеральный округ
Крым
Close mobile menu

Характеристики дома:

Площадь дома

132 m2

Кол-во жилых комнат

4
Стоимость проекта АР+КР
37,600 ₽

Хотите изменить планировку?

Отправьте запрос архитектору и обсудите с ним ваши идеи по перепланировке.

О проекте

Деревянный дом прямоугольной формы, выполнен из бревна диаметром 260 мм. Конструкция крыши - простая двухскатная.

Входим в дом с крыльца накрытого небольшой двухскатной крышей и попадаем в тамбур почти 4.5 кв м, в котором по правую руку ведёт дверь в гардеробную 4.5 кв м с окном. Из тамбура проходим в холл 9.5 кв м. Сразу при входе по правой стороне размещена лестница на второй этаж, под маршем которой дверь в котельную. Площадь котельной 6.6 кв м, рассчитана под отопление дома газовым оборудованием.
На первом этаже спроектированы также удобный с/у 6 кв м с ванной и небольшим окном. Гостиная в доме 25.8 кв м объединена с кухней 9 кв м в одно помещение, что то в данном случае очень удобно, т.к. нет лишних перегородок, уменьшающих визуально помещение - особенно кухонную зону.
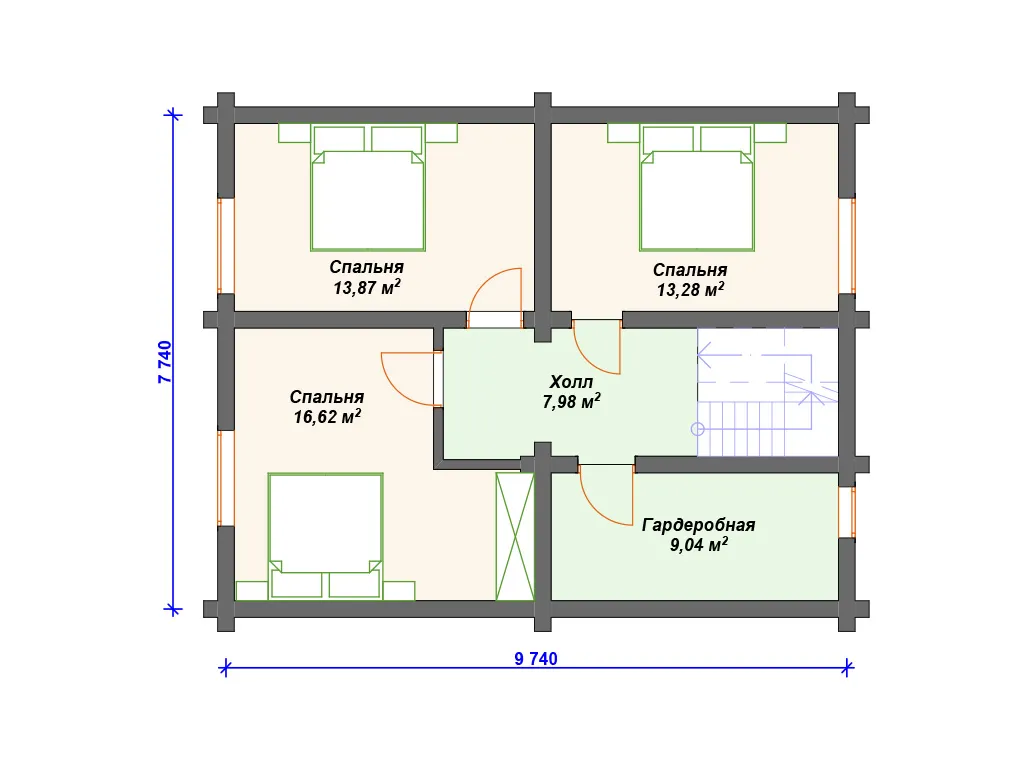
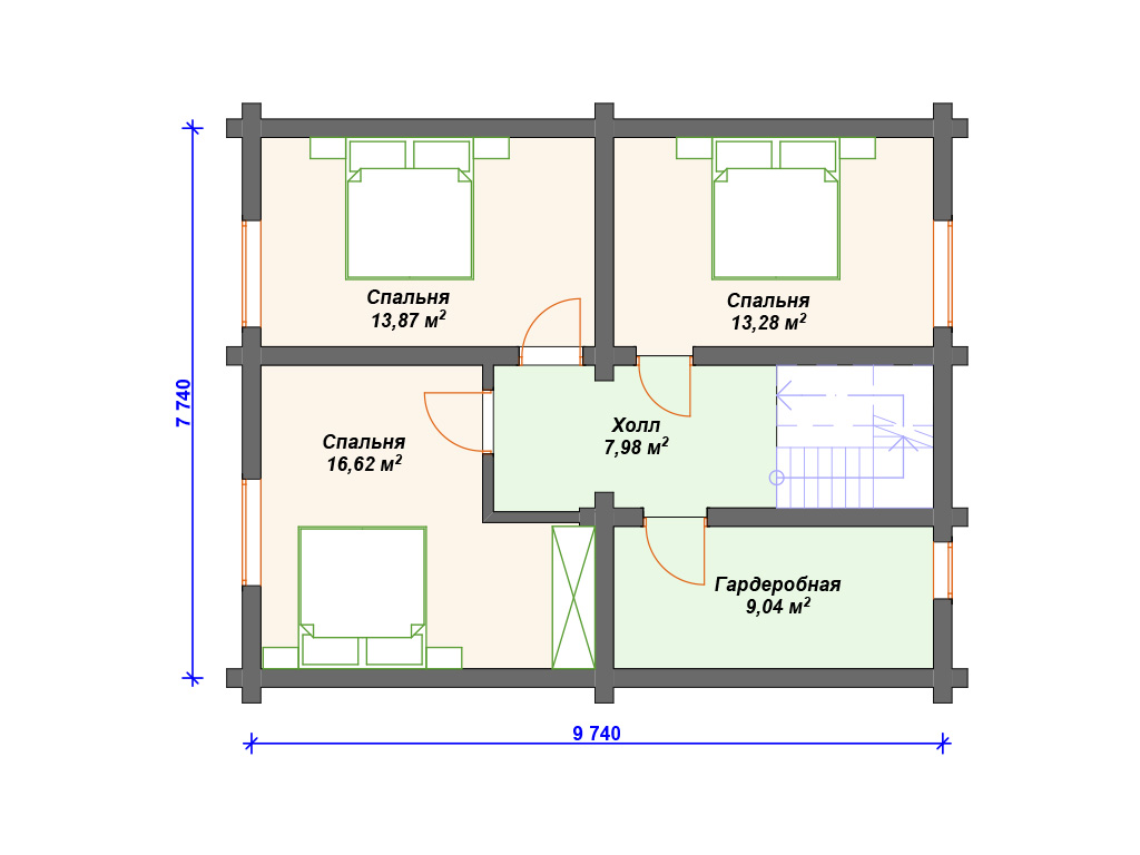
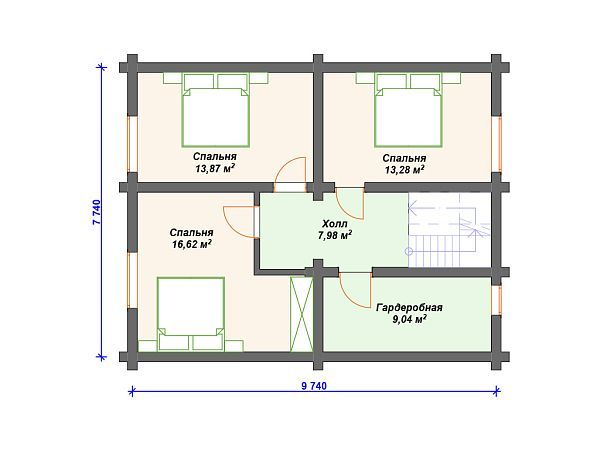
Поднимаемся на второй этаж и проходим в холл, площадью около 8 кв м. Отсюда можно пройти в три спальни 13.8 кв м, 13 кв м и 16.6 кв м. Так же на этаже имеется общая гардеробная.

По своей форме и архитектуре дом достаточно простой и очень популярен среди наших заказчиков, так как он является экономически выгодным - все в нем есть - ничего лишнего, а стоимость его приятно удивляет.

Аккредитованы в ведущих банках

Корзина
Ваша корзина пуста
Выберите в каталоге интересующий товар и нажмите кнопку "В корзину"
Отложенные товары
Отложенных товаров нет
Выберите в каталоге интересующий товар и нажмите кнопку "В избранное"
Заказать звонок