Проекты домов Оформить
ипотеку
Стройматериалы Участки Строительство
Выберите свой регион строительства
Крымский федеральный округ
Крым
Close mobile menu

Характеристики дома:

Площадь дома

167 m2

Кол-во жилых комнат

6+
Стоимость проекта АР+КР
44,900 ₽

Хотите изменить планировку?

Отправьте запрос архитектору и обсудите с ним ваши идеи по перепланировке.

О проекте

S4-167 (А-035). Здесь мы видим редкий проект загородного дома – в нём используется и дерево, и камень. Этот комбинированный двухэтажный коттедж придётся по вкусу ценителям нестандартных решений в экстерьере и функциональности внутри.

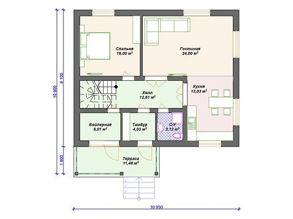
Планировка первого этажа достаточно традиционная по современным меркам. Из прихожей мы попадаем в длинный холл, из которого можно пройти либо в гостевую спальню, либо в ванную комнату, либо в большое Г-образное помещение, объединяющее в себе кухню с гостиной. Это максимально удобная конфигурация пространства, позволяющая чувствовать объем и простор загородного дома.

Удобная планировка сохраняется и на втором этаже коттеджа. У нас есть три спальни (самая большая – целых 25 квадратных метров) и кабинет для любителей работать из дома. И конечно же нашлось место и для ванной комнаты.

Аккредитованы в ведущих банках

Корзина
Ваша корзина пуста
Выберите в каталоге интересующий товар и нажмите кнопку "В корзину"
Отложенные товары
Отложенных товаров нет
Выберите в каталоге интересующий товар и нажмите кнопку "В избранное"
Заказать звонок