Проекты домов Оформить
ипотеку
Стройматериалы Участки Строительство
Выберите свой регион строительства
Крымский федеральный округ
Крым
Close mobile menu

Характеристики дома:

Площадь дома

131 m2

Кол-во жилых комнат

4
Стоимость проекта АР+КР
37,300 ₽

Хотите изменить планировку?

Отправьте запрос архитектору и обсудите с ним ваши идеи по перепланировке.

О проекте

Дом общей площадью 131 кв м, прямоугольной формы, выполнен из бревна диаметром 260 мм. Строительство здания осуществляется на свайно-ростверковом фундаменте.

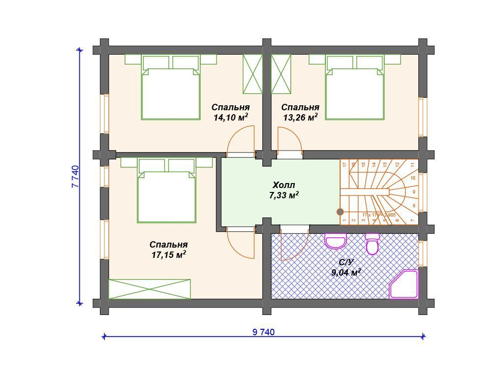
Планировка дома предполагает четкое зонирование: первый этаж отведен под дневную зону. Гостиная 20.88 кв м объединена в одно помещение с кухней-столовой 19.44 кв м, совмещенный санузел оборудован душевой кабиной и холл, часть которого занимает межэтажная лестница. Поднимаемся на второй этаж и проходим в холл 7.33 кв м, из которого можно пройти в три спальни (13 кв м, 14 кв м и 17 кв м) и комфортный по площади с/у 9 кв м.

Хороший, компактный проект дома для загородного жилья.

Аккредитованы в ведущих банках

Корзина
Ваша корзина пуста
Выберите в каталоге интересующий товар и нажмите кнопку "В корзину"
Отложенные товары
Отложенных товаров нет
Выберите в каталоге интересующий товар и нажмите кнопку "В избранное"
Заказать звонок