Проекты домов Оформить
ипотеку
Стройматериалы Участки Строительство
Выберите свой регион строительства
Крымский федеральный округ
Крым
Close mobile menu

Характеристики дома:

Площадь дома

194 m2

Кол-во жилых комнат

3
Стоимость проекта АР+КР
37,200 ₽

Хотите изменить планировку?

Отправьте запрос архитектору и обсудите с ним ваши идеи по перепланировке.

О проекте

Дом прямоугольной формы, выполнен из бревна диаметром. Конструкция крыши - сложная. Строительство здания осуществляется на свайно-ростверковом фундаменте. Заходим в дом через крыльцо и сразу попадаем в просторный холл 19.4 кв м в конце которого расположена лестница на второй этаж.

Все помещения первого этажа просторные и комфортные. Правую сторону холла занимают кухня-столовая 28 кв м и равноценная по площади гостиная. По левой стороне - вход в котельную, рассчитанную под газовое оборудование, небольшая кладовая и совмещённый санузел с душевой кабиной.
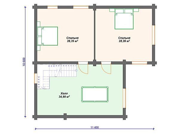
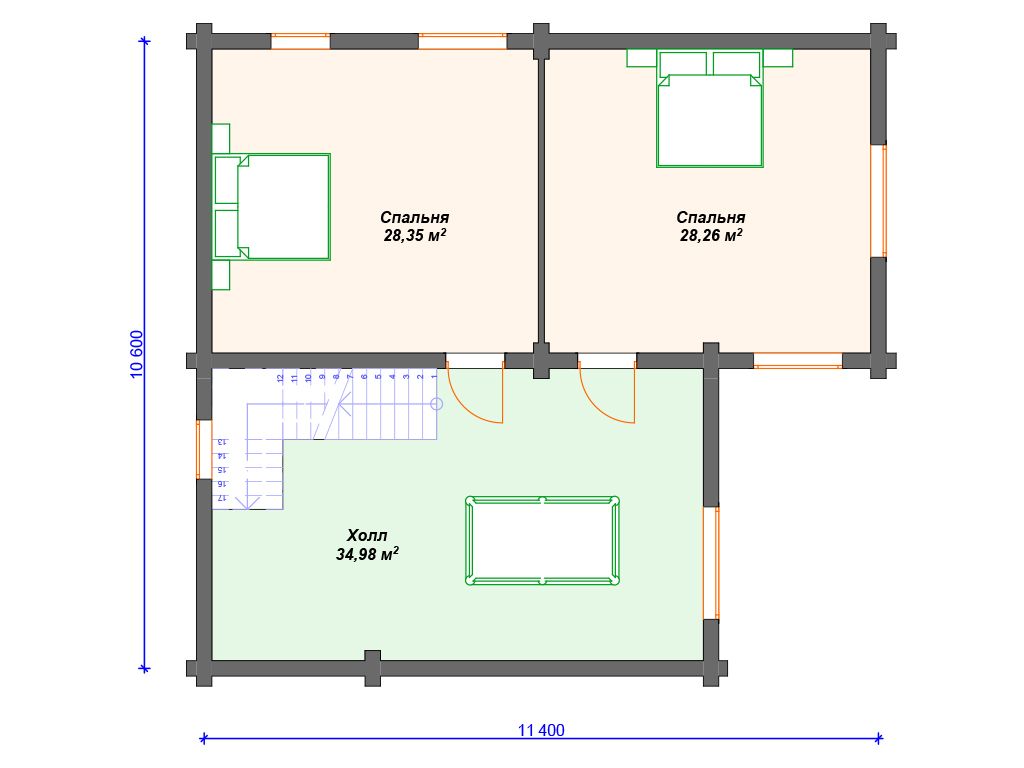
Поднимаемся на второй этаж по г-образной лестнице и проходим в просторный холл почти 35 кв м. Здесь можно разместить мебель и устроить зону отдыха. На этаже две комфортные по площади спальни - 28 кв м.

Дом прекрасно подойдёт для круглогодичного проживания.

Аккредитованы в ведущих банках

Корзина
Ваша корзина пуста
Выберите в каталоге интересующий товар и нажмите кнопку "В корзину"
Отложенные товары
Отложенных товаров нет
Выберите в каталоге интересующий товар и нажмите кнопку "В избранное"
Заказать звонок