Проекты домов Оформить
ипотеку
Стройматериалы Участки Строительство
Выберите свой регион строительства
Крымский федеральный округ
Крым
Close mobile menu

Характеристики дома:

Площадь дома

127 m2

Кол-во жилых комнат

4
Стоимость проекта АР+КР
36,500 ₽

Хотите изменить планировку?

Отправьте запрос архитектору и обсудите с ним ваши идеи по перепланировке.

О проекте

Двухэтажный деревянный дом с простой двухскатной крышей, выполнен из бревна. Дом общей площадью 127 кв м. Строительство здания осуществляется на свайно-ростверковый фундаменте.

Входим в дом с крыльца в тамбур, в котором предусмотрен вход в совмещённый с/у с душевой кабиной. Площадь тамбура не позволяет разместить гардероб, поэтому в нем можно разместить только вешалку для верхней одежды. Далее проходим в холл. Холл небольшой (7.5 кв м), занимает минимум пространства - все отдано в полезное пространство.
 Сразу при входе по левой стороне расположена межэтажная лестница, освещающая дневным светом специальным окном. Гостиная в доме 27.36 кв м. Кухня площадью 12.84 кв м, отделена от гостиной несущей стеной. В проекте предложено оставить пустой проем между кухней и гостиной, но можно вставить и распашную дверь, чтобы избежать попадание запахов и шума в зону отдыха.
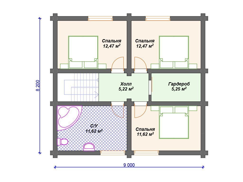
На втором этаже три спальни 11-12 кв м и санузел с душевой кабиной.

Дом очень популярен среди наших заказчиков, так как является экономически выгодным и позволяющий расположить для проживания семью из 3 человек.

Аккредитованы в ведущих банках

Корзина
Ваша корзина пуста
Выберите в каталоге интересующий товар и нажмите кнопку "В корзину"
Отложенные товары
Отложенных товаров нет
Выберите в каталоге интересующий товар и нажмите кнопку "В избранное"
Заказать звонок