Проекты домов Оформить
ипотеку
Стройматериалы Участки Строительство
Выберите свой регион строительства
Крымский федеральный округ
Крым
Close mobile menu

Характеристики дома:

Площадь дома

122 m2

Кол-во жилых комнат

5
Стоимость проекта АР+КР
37,200 ₽

Хотите изменить планировку?

Отправьте запрос архитектору и обсудите с ним ваши идеи по перепланировке.

О проекте

Деревянный дом выполнен из бревна диаметром 240 мм. Общая площадь 122 кв м. Строительство здания осуществляется на свайно-ростверковом фундаменте. В плане дом квадратной формы.

Входим в дом с крыльца, расположенного в габаритах дома. Рядом с главным входом расположена дверь в котельную 5 кв м. Заходим в тамбур, площадью 5.87 кв м. Холла в доме нет, поэтому из тамбура сразу попадаем в гостиную 29.86 кв м. Отсюда можно попасть во все помещения этажа - кухню 11.3 кв м, гостевую комнату 13 кв м и совмещённый с/у с ванной 4.32 кв м. Межэтажная лестница так же размещена в гостиной.
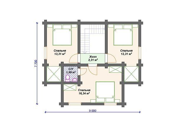
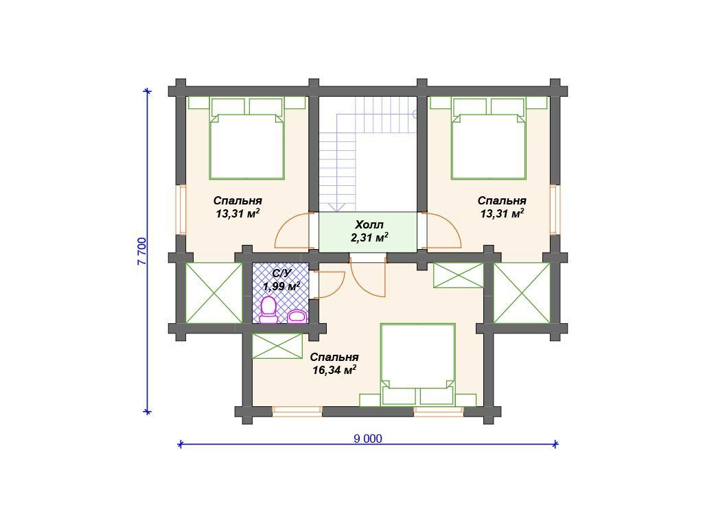
Поднимаемся на второй этаж и проходим в маленький холл почти 2 кв м, из которого открываются двери в тир спальных комнаты - две 13.31 кв м и 16.34 кв м с собственным с/у.

Внутренне пространство дома распланировано очень рационально – на сравнительно небольшой площади есть все необходимое для круглогодичного проживания нескольких человек.

Аккредитованы в ведущих банках

Корзина
Ваша корзина пуста
Выберите в каталоге интересующий товар и нажмите кнопку "В корзину"
Отложенные товары
Отложенных товаров нет
Выберите в каталоге интересующий товар и нажмите кнопку "В избранное"
Заказать звонок