Проекты домов Оформить
ипотеку
Стройматериалы Участки Строительство
Выберите свой регион строительства
Крымский федеральный округ
Крым
Close mobile menu

Характеристики дома:

Площадь дома

109 m2

Кол-во жилых комнат

4
Стоимость проекта АР+КР
35,800 ₽

Хотите изменить планировку?

Отправьте запрос архитектору и обсудите с ним ваши идеи по перепланировке.

О проекте

Дом общей площадью 109 кв м. Габариты дома - 8.46х8.76 м. Деревянный дом квадратной формы, выполнен из бревна, диаметром 240 мм. Конструкция крыши - двускатная, с мансардными окнами. Строительство здания осуществляется на свайно-ростверковом фундаменте. Перекрытия 1 и 2 эт.- деревянные балки. Покрытие кровли - металлочерепица.

Входим в дом с закрытой с террасы расположенной в габаритах дома, площадью 5 кв м. Далее проходим в тамбур, который имеет естественное освещение через окно. В тамбуре можно разместить небольшую вешалку для верхней одежды. Из тамбура проходим в холл 11 кв м. Сразу при входе с левой стороны имеется с/у 5 кв м. Далее лестница рядом с с/у. Правую сторону дома занимает кухня- гостиная 27.7 кв м. На этаже также размещена комната 12.4 кв м. Это помещение можно использовать как гостевую или кабинет.
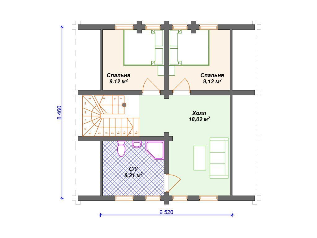
Поднимаемся на второй этаж и проходим в просторный холл 18 кв м, в котором можно разместить мебель для отдыха. На этаже расположены две спальни равноценные по площади 9 кв м и комфортный с/у с душевой кабиной 8 кв м. Такой проект подойдёт для любителей деревянных домов.

Площадь дома небольшая, но здесь прекрасно разместится семья из 3 человек.

Аккредитованы в ведущих банках

Корзина
Ваша корзина пуста
Выберите в каталоге интересующий товар и нажмите кнопку "В корзину"
Отложенные товары
Отложенных товаров нет
Выберите в каталоге интересующий товар и нажмите кнопку "В избранное"
Заказать звонок