Проекты домов Оформить
ипотеку
Стройматериалы Участки Строительство
Выберите свой регион строительства
Крымский федеральный округ
Крым
Close mobile menu

Характеристики дома:

Площадь дома

117 m2

Кол-во жилых комнат

3
Стоимость проекта АР+КР
36,400 ₽

Хотите изменить планировку?

Отправьте запрос архитектору и обсудите с ним ваши идеи по перепланировке.

О проекте

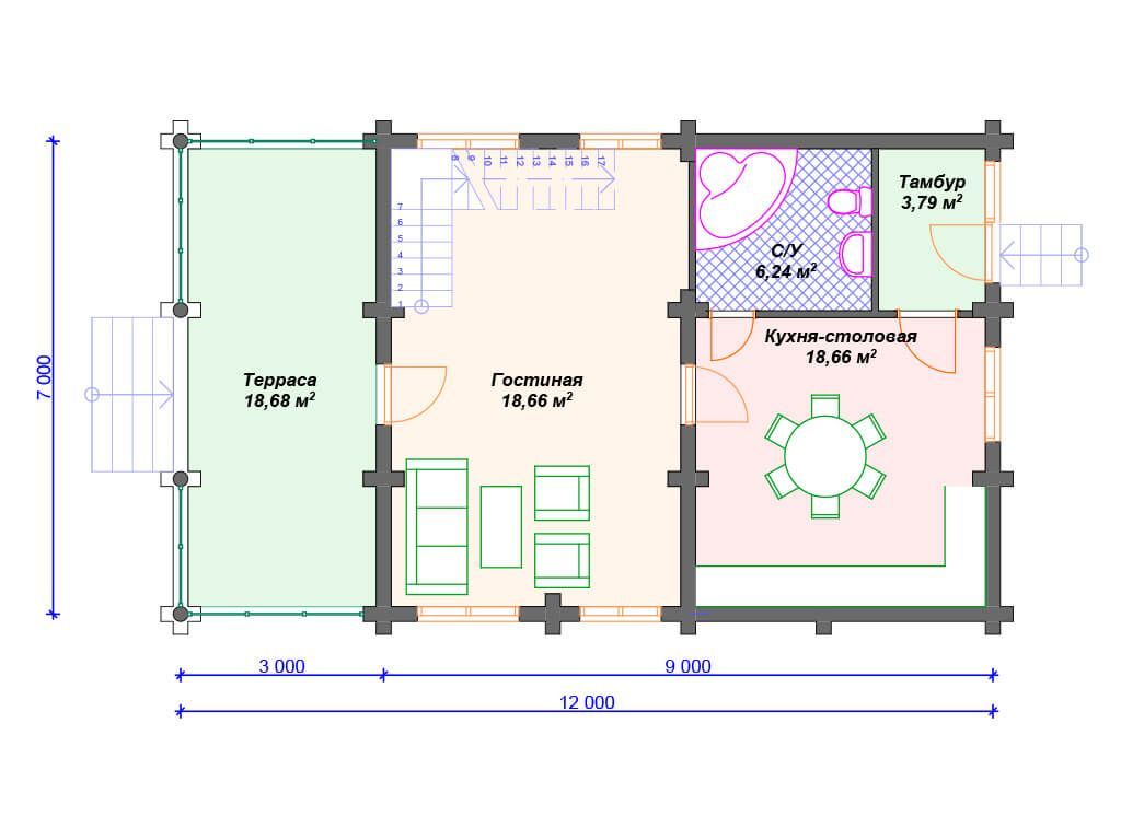
Деревянный дом прямоугольной формы, выполнен из бревна. Конструкция крыши - простая двускатная.

Входим в дом через тамбур, который имеет естественное освещение через окно. В тамбуре можно разместить небольшую гардеробную (вешалки) для верхней одежды. Далее сразу попадаем в зону кухни - столовой площадью 18.6 кв м, с выходом в гостиную, а также в санузел. Холла в доме нет, дом небольшой, места для "лишних" помещений практически нет. Гостиная светлая, благодаря наличию 4 окон, из нее в мансардный этаж поднимается двухмаршевая лестница с промежуточной площадкой, а также отсюда предусмотрен выход на террасу. Здесь можно с комфортом отдыхать тёплыми летними вечерами.
Верхний этаж обустроен очень компактно, там находятся две равноценные по площади спальни и с/у с душевым поддоном.

Проект дома хорошо подойдет для замены, например, двухкомнатной квартиры.

Аккредитованы в ведущих банках

Корзина
Ваша корзина пуста
Выберите в каталоге интересующий товар и нажмите кнопку "В корзину"
Отложенные товары
Отложенных товаров нет
Выберите в каталоге интересующий товар и нажмите кнопку "В избранное"
Заказать звонок