Проекты домов Оформить
ипотеку
Стройматериалы Участки Строительство
Выберите свой регион строительства
Крымский федеральный округ
Крым
Close mobile menu

Характеристики дома:

Площадь дома

150 m2

Кол-во жилых комнат

6+
Стоимость проекта АР+КР
44,700 ₽

Хотите изменить планировку?

Отправьте запрос архитектору и обсудите с ним ваши идеи по перепланировке.

О проекте

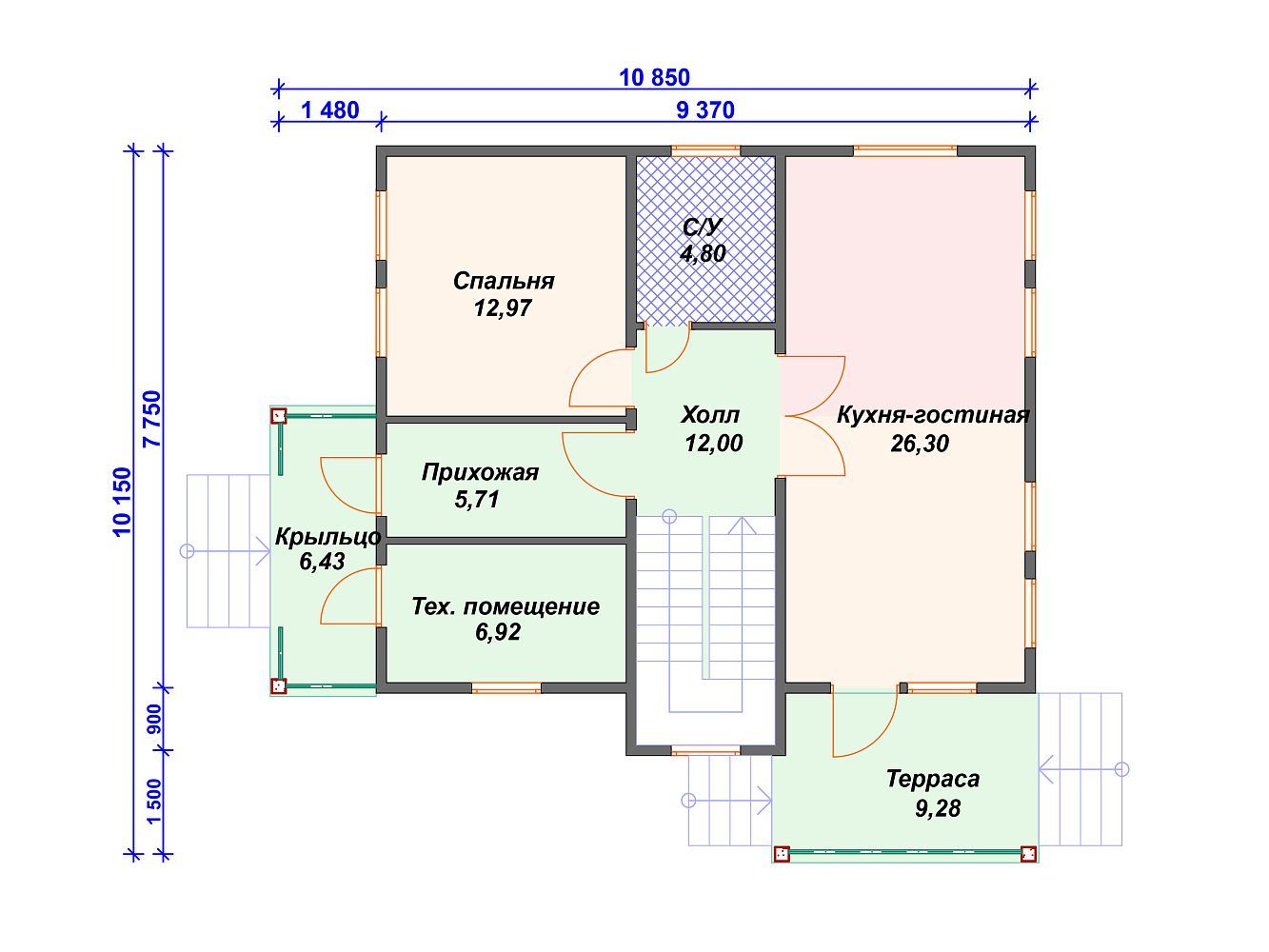
S4-150 (И-013)-двухэтажный дом, с полноценным вторым этажом выполнен из деревянного каркаса толщиной 150 мм, с комбинированной отделкой наружных стен. Входим в дом с крыльца 6 кв м накрытого односкатной крышей. С крыльца так же можно пройти в тех. помещение, площадью почти 7 кв м, рассчитанное под газовое оборудование. Заходим в прихожую. Площадь прихожей (5.7 кв м) позволяет разместить шкаф для одежды, т. к. гардеробной в доме не предусмотрено. Их прихожей попадаем холл 12 кв м. Несмотря на то, что жилая площадь дома небольшая, в доме располагаются 5 спален: одна спальня на 1-ом этаже, которую можно переоборудовать в кабинет или же использовать как гостевую комнату. Гостиная в доме совмещена с кухней в одно просторное помещение 26 кв м. Комната светлая благодаря большому количеству окон, отсюда можно выйти на небольшую террасу 9 кв м. На этаже спроектирован с/у 4.8 кв м, расположенный сразу при входе в холл, по левой стороне. Лестница на 2-ой этаж очень удобно расположена в конце холла и освещается окном. Поднимаемся на второй этаж и проходим в холл 5.4 кв м. На этаже четыре равноценные по площади спальни 13 кв м и с/у 4.8 кв м. В одной из спален предусмотрен выход на балкон. Санузлы первого и второго этажей расположены один над другим, что упрощает проведение водопровода и канализации в доме. Скромный и в то же время очаровательный загородный дом идеально подойдет для постоянного проживания семьи из 4 человек.

Аккредитованы в ведущих банках

Корзина
Ваша корзина пуста
Выберите в каталоге интересующий товар и нажмите кнопку "В корзину"
Отложенные товары
Отложенных товаров нет
Выберите в каталоге интересующий товар и нажмите кнопку "В избранное"
Заказать звонок