Проекты домов Оформить
ипотеку
Стройматериалы Участки Строительство
Выберите свой регион строительства
Крымский федеральный округ
Крым
Close mobile menu

Характеристики дома:

Площадь дома

112 m2

Кол-во жилых комнат

4
Стоимость проекта АР+КР
36,600 ₽

Хотите изменить планировку?

Отправьте запрос архитектору и обсудите с ним ваши идеи по перепланировке.

О проекте

Деревянный дом прямоугольной формы, выполнен из бревна диаметром 220 мм. Конструкция крыши - простая двускатная. Строительство здания осуществляется на фундаменте - винтовые сваи.

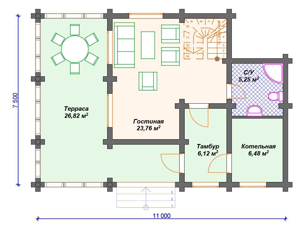
Вход в дом осуществляется через г-образную террасу 26.8 кв м, с главного фасада дома: спереди она является крыльцом, а с левой стороны можно разместить террасную мебель для отдыха. Терраса накрыта одной крышей с домом. Такой способ является практичным видом конструкции крыши, т.к. нет лишних стыков или переломов в крыше, что делает ее более надежной в эксплуатации и легче в строительстве.
Заходим в тамбур 6 кв м, из которого можно пройти в котельную, рассчитанную под газовое оборудование. Далее попадаем из тамбура сразу в основную часть дома - в зону кухни-гостиную, холла в доме нет ( дом небольшой, места для "лишних" помещений практически нет). Отсюда предусмотрен вход в санузел 5 кв м с душевым поддоном. Лестница на второй этаж так же размещена в гостиной.
Второй этаж спальная зона из трёх спален - две равноценные по площади 7.8 кв м и родительская спальня 14 кв м, из которой можно выйти на балкон. На этаже имеется с/у 5 кв м с душевой кабиной. Санузлы в доме расположенные один над другим, что облегчат установку водопровода и канализации в доме.

Проект небольшой бюджетного дома для постоянного проживания семьи из 2-3 человек.

Аккредитованы в ведущих банках

Корзина
Ваша корзина пуста
Выберите в каталоге интересующий товар и нажмите кнопку "В корзину"
Отложенные товары
Отложенных товаров нет
Выберите в каталоге интересующий товар и нажмите кнопку "В избранное"
Заказать звонок