Проекты домов Оформить
ипотеку
Стройматериалы Участки Строительство
Выберите свой регион строительства
Крымский федеральный округ
Крым
Close mobile menu

Характеристики дома:

Площадь дома

154 m2

Кол-во жилых комнат

5
Стоимость проекта АР+КР
37,700 ₽

Хотите изменить планировку?

Отправьте запрос архитектору и обсудите с ним ваши идеи по перепланировке.

О проекте

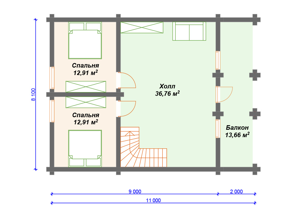
S4-154 (ДО-004) Дом простой формы из бревна диаметром 240 мм, габаритами 8.1х11 м. Двухэтажный дом с мансардой с 4 небольшими спальнями, с балконом. Строительство здания осуществляется на свайно-ростверковом фундаменте.

Входим в дом с просторного крыльца расположенного во всю длину дома, которое можно использовать в качестве террасы. Здесь можно поставить небольшой стол с креслами для отдыха. Заходим в тамбур 5 кв м, в котором удобно разместить шкаф для одежды, так как отдельной гардеробной в этом проекте не предусмотрено. Из тамбура сразу попадаем в гостиную, площадью 25 кв м.

В гостиной расположена лестница на второй этаж. На этаже размещены две небольшие комнаты 9 кв м, кухня 8 кв м и санузел с ванной 3 кв м. Поднимаемся на второй этаж и проходим в просторный холл 36.7 кв м, из которого предусмотрен выход на балкон. На этаже две спальни по 12.9 кв м.
Дом подойдёт для постоянного проживания.

Аккредитованы в ведущих банках

Корзина
Ваша корзина пуста
Выберите в каталоге интересующий товар и нажмите кнопку "В корзину"
Отложенные товары
Отложенных товаров нет
Выберите в каталоге интересующий товар и нажмите кнопку "В избранное"
Заказать звонок