Проекты домов Оформить
ипотеку
Стройматериалы Участки Строительство
Выберите свой регион строительства
Крымский федеральный округ
Крым
Close mobile menu

Характеристики дома:

Площадь дома

109 m2

Кол-во жилых комнат

4
Стоимость проекта АР+КР
36,300 ₽

Хотите изменить планировку?

Отправьте запрос архитектору и обсудите с ним ваши идеи по перепланировке.

О проекте

Деревянный дом прямоугольной формы, выполнен из бревна, диаметром 200 мм. Конструкция крыши - простая двускатная. Строительство здания осуществляется на свайно-ростверковом фундаменте.

Вход в дом осуществляется с террасы, входящей в габариты дома. С террасы, рядом с основным входом в дом предусмотрен вход в котельную 4 кв м. Заходим в дом через небольшой тамбур 2 кв м, а затем проходим сразу в просторную гостиную 30 кв м, из которой предусмотрен вход во все помещения этажа. Сразу при входе по правой стороне с/у 6.7 кв м с душевой кабиной. С левой стороны кухня 5.7 кв м, обеденная зона находится в гостиной у окна. На этаже имеется кабинет 6.6 кв м. Лестница на второй этаж запланирована по правой стороне гостиной между с/у и кабинетом и имеет освещение через окно. Дом имеет два входа: основной с террасы и выход на задний двор дома через гостиную.
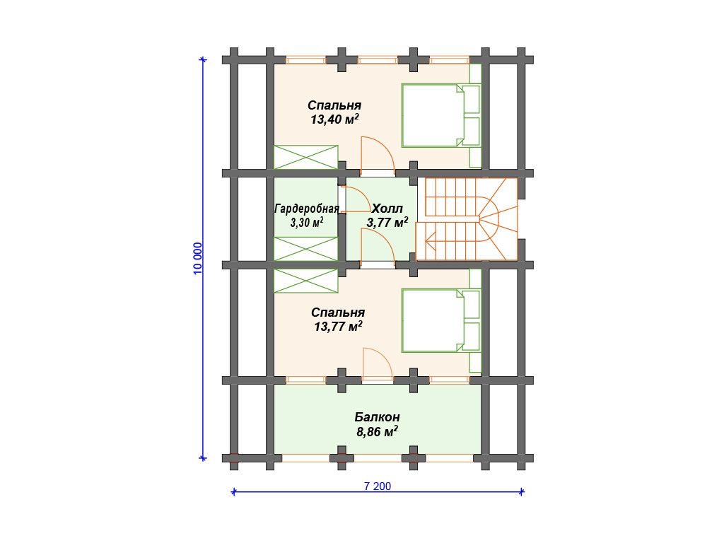
Поднимаемся на второй этаж и проходим в холл 3.7 кв м. Прямо расположена гардеробная 3 кв м. Спальни на этаже расположены по обеим сторонам холла, площадью 13 кв м и 13.7 кв м. В спальне большей площадью предусмотрен выход на балкон. Балкон предусмотрен прямо над террасой, вместе с которой украшает главный фасад дома.

В целом, удобный и комфортный дом с традиционной планировкой отличный вариант для круглогодичного проживания семьи из 3 человек.

Аккредитованы в ведущих банках

Корзина
Ваша корзина пуста
Выберите в каталоге интересующий товар и нажмите кнопку "В корзину"
Отложенные товары
Отложенных товаров нет
Выберите в каталоге интересующий товар и нажмите кнопку "В избранное"
Заказать звонок