Проекты домов Оформить
ипотеку
Стройматериалы Участки Строительство
Выберите свой регион строительства
Крымский федеральный округ
Крым
Close mobile menu

Характеристики дома:

Площадь дома

100 m2

Кол-во жилых комнат

3
Стоимость проекта АР+КР
35,800 ₽

Хотите изменить планировку?

Отправьте запрос архитектору и обсудите с ним ваши идеи по перепланировке.

О проекте

Проект небольшого деревянного дома из бревна ДО-045. Дом из бревна диаметром 240 мм, габаритами 9.50х7.50 м. Двухэтажный дом с мансардой, в плане (без учета крыльца) прямоугольной формы. Фигурные выпуски украшают довольно простой облик дома.

Вход в дом осуществляется через крыльцо-веранду, попадаем сразу в холл, где расположена п-образная лестница. Из холла также можно попасть в санузел (в 5 кв м) и котельную, оборудованную для газового отопления дома. Кухня-гостиная является одним объединенным помещением в 27 кв м, откуда есть выход на задний двор участка.
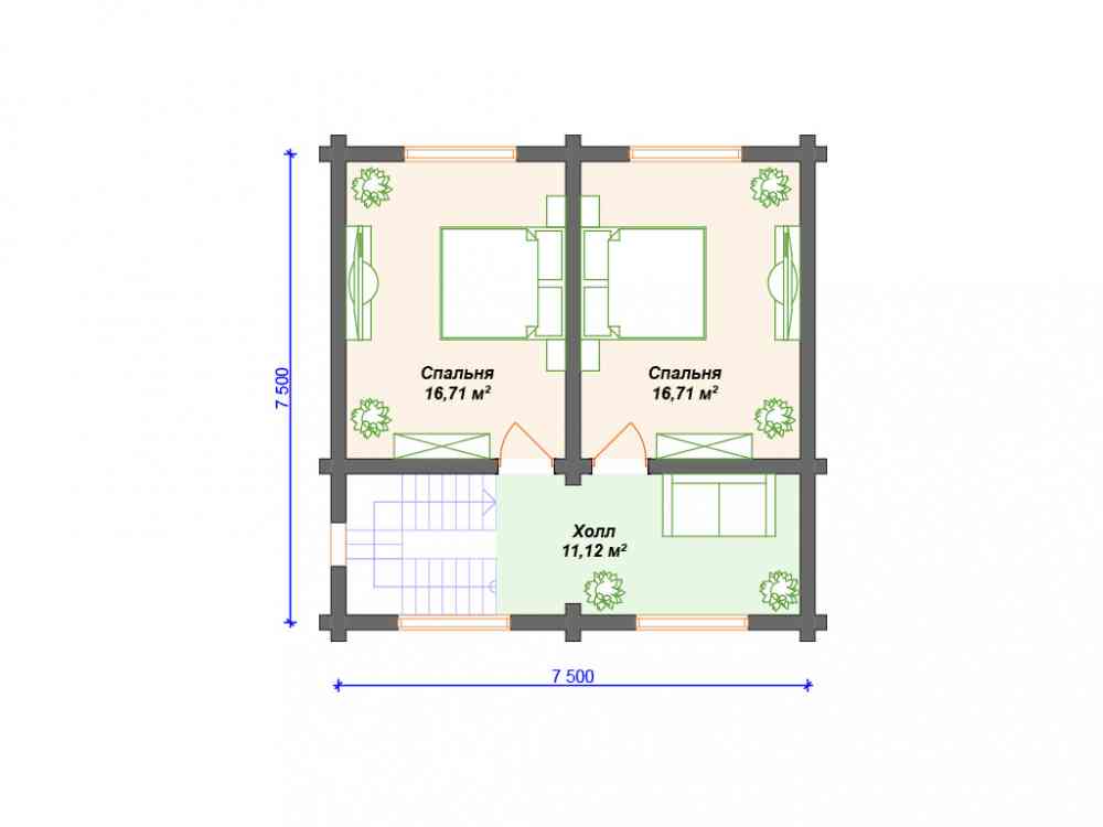
Поднимаемся на 2 этаж и попадаем в холл (11 кв м), в котором можно разместить зону отдыха. В доме 2 спальни почти по 17 кв м. Дом простой, но очень симпатичный.

Отлично подойдет в качестве гостевого или дачного дома.

Аккредитованы в ведущих банках

Корзина
Ваша корзина пуста
Выберите в каталоге интересующий товар и нажмите кнопку "В корзину"
Отложенные товары
Отложенных товаров нет
Выберите в каталоге интересующий товар и нажмите кнопку "В избранное"
Заказать звонок