Проекты домов Оформить
ипотеку
Стройматериалы Участки Строительство
Выберите свой регион строительства
Крымский федеральный округ
Крым
Close mobile menu

Характеристики дома:

Площадь дома

101 m2

Кол-во жилых комнат

3
Стоимость проекта АР+КР
36,800 ₽

Хотите изменить планировку?

Отправьте запрос архитектору и обсудите с ним ваши идеи по перепланировке.

О проекте

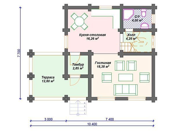
Деревянный дом прямоугольной формы, выполнен из бревна диаметром 260 мм. Конструкция крыши - двухскатная. Габариты дома (по краям) - 7.70х10.40 м. Строительство здания осуществляется на свайно-ростверковом фундаменте.

Вход в дом осуществляется с террасы 12.8 кв м, накрытой двухскатной крышей отдельной от дома. Заходим через тамбур сразу в зону кухни-столовой, площадью 16.26 кв м. Холла в доме нет ( дом небольшой, места для "лишних" помещений практически нет). Отсюда через проём в стене проходим в гостиную 18.38 кв м. Санузел на первом этаже оборудован душевой кабиной.
На втором этаже две спальни - 18 кв м и 15.98 кв м (с собственной гардеробной комнатой), а так же совмещённый с/у с душевой кабиной.

Дом компактный, но со всем необходимым для проживания небольшой семьи.

Аккредитованы в ведущих банках

Корзина
Ваша корзина пуста
Выберите в каталоге интересующий товар и нажмите кнопку "В корзину"
Отложенные товары
Отложенных товаров нет
Выберите в каталоге интересующий товар и нажмите кнопку "В избранное"
Заказать звонок