Проекты домов Оформить
ипотеку
Стройматериалы Участки Строительство
Выберите свой регион строительства
Крымский федеральный округ
Крым
Close mobile menu

Характеристики дома:

Площадь дома

230 m2

Кол-во жилых комнат

5
Стоимость проекта АР+КР
38,400 ₽

Хотите изменить планировку?

Отправьте запрос архитектору и обсудите с ним ваши идеи по перепланировке.

О проекте

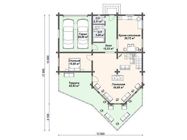
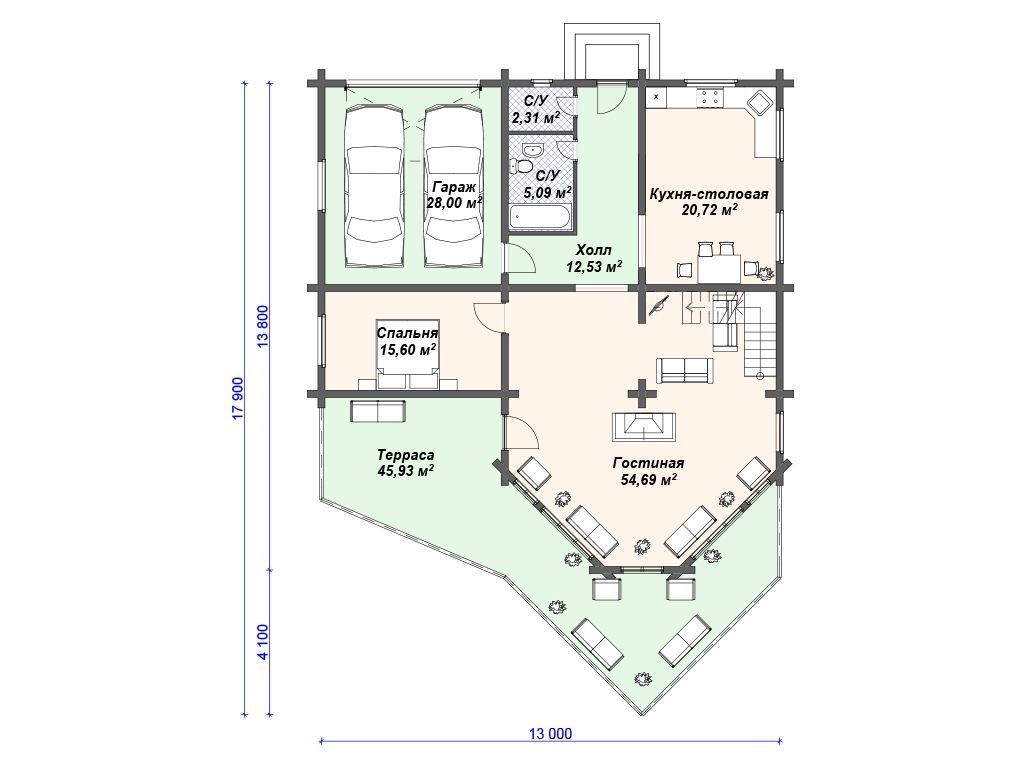
Деревянный дом прямоугольной формы, общей площадью 230 кв м, выполнен из бревна. Конструкция крыши - двухскатная. Строительство здания осуществляется на свайно-ростверковом фундаменте.

Входим в дом с крыльца и сразу попадаем в холл дома площадью 12.53 кв м. Сразу при входе по правую руку расположено два санузла: небольшой 2.31 кв. м, и с/у совмещённый с ванной 5 кв м. По левой стороне вход в кухню-столовую 20.72 кв м. Кухня и гостиная в доме разделены на 2 отдельных помещения. Гостиная 54.69 в м, расположена в эркерной зоне. Отсюда в проекте предложен выход на просторную террасу почти 46 кв м. На этаже имеется комната 15.60 кв м, которую при необходимости можно переоборудовать в кабинет или гостевую комнату. По правой стороне главного входа, в проекте предусмотрен гараж на 2 машины, площадью 28 кв м.
Поднимаемся на второй этаж и проходим в небольшой холл, из которого открывается вид на «второй свет» расположенный над гостиной. На этаже две равноценные по площади спальни 20.72 кв м.

Оригинальный проект удобного стильного дома, в котором прекрасно разместится семья из 4-5 человек.

Аккредитованы в ведущих банках

Корзина
Ваша корзина пуста
Выберите в каталоге интересующий товар и нажмите кнопку "В корзину"
Отложенные товары
Отложенных товаров нет
Выберите в каталоге интересующий товар и нажмите кнопку "В избранное"
Заказать звонок