Проекты домов Оформить
ипотеку
Стройматериалы Участки Строительство
Выберите свой регион строительства
Крымский федеральный округ
Крым
Close mobile menu

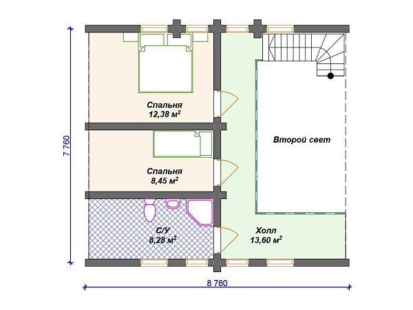
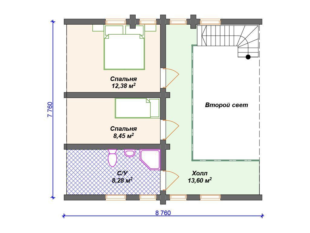
Характеристики дома:

Площадь дома

101 m2

Кол-во жилых комнат

4
Стоимость проекта АР+КР
36,900 ₽

Хотите изменить планировку?

Отправьте запрос архитектору и обсудите с ним ваши идеи по перепланировке.

О проекте

S4-101 (ДО-146) Двухэтажный дом с мансардой идеально подходит для комфортной жизни большой семьи. На первом этаже располагаются просторная гостиная и уютная кухня. Из этой зоны есть выход на замечательную террасу, где можно насладиться свежим воздухом и природой. На втором этаже находятся две уютные спальни, каждая из которых оборудована окнами, обеспечивающими хорошее освещение и прекрасный вид. Этот дом сочетает в себе современный стиль и комфорт, идеально подходя для тех, кто ценит уют и практичность.


Аккредитованы в ведущих банках

Корзина
Ваша корзина пуста
Выберите в каталоге интересующий товар и нажмите кнопку "В корзину"
Отложенные товары
Отложенных товаров нет
Выберите в каталоге интересующий товар и нажмите кнопку "В избранное"
Заказать звонок