Проекты домов Оформить
ипотеку
Стройматериалы Участки Строительство
Выберите свой регион строительства
Крымский федеральный округ
Крым
Close mobile menu

Характеристики дома:

Площадь дома

99 m2

Кол-во жилых комнат

6+
Стоимость проекта АР+КР
35,100 ₽

Хотите изменить планировку?

Отправьте запрос архитектору и обсудите с ним ваши идеи по перепланировке.

О проекте

Проект деревянного дома из бревна с 3 спальнями. Двухэтажный мансардный дом прямоугольной формы, выполнен из оцилиндрованного бревна, диаметром 240 мм. Дом общей площадью 99 кв м, полезная площадь дома - 87 кв м, жилая - 55 кв м. Габариты дома - 9.20х7.20 м. Строительство здания осуществляется на винтовых сваях. Перекрытия - деревянные лаги. Покрытие кровли - металлочерепица.

Главный фасад дома украшает крыльцо, красиво оформленное фигурными выпусками. Да и в принципе благодаря фигурным выпускам дом выглядит очень "нарядным". Заходим в дом через небольшое крыльцо и попадаем в тамбур-котельную, так как габариты дома не позволяют котельную разместить отдельным помещением.
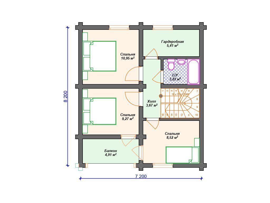
Далее - маленький холл, из которого попадаем с санузел и квадратную спальню 10,95 кв м. Кухня, площадью 10 кв м, в доме объединена с гостиной практически в одно помещение. В самой гостиной размещена п-образная лестница, которая является украшением. На 2-ом этаже расположены 3 небольшие спальни, гардеробная, маленький санузел и балкон.

Дом подойдет для проживания семьи из 4-5 человек.

Аккредитованы в ведущих банках

Корзина
Ваша корзина пуста
Выберите в каталоге интересующий товар и нажмите кнопку "В корзину"
Отложенные товары
Отложенных товаров нет
Выберите в каталоге интересующий товар и нажмите кнопку "В избранное"
Заказать звонок