Проекты домов Оформить
ипотеку
Стройматериалы Участки Строительство
Выберите свой регион строительства
Крымский федеральный округ
Крым
Close mobile menu

Характеристики дома:

Площадь дома

93 m2

Кол-во жилых комнат

2
Стоимость проекта АР+КР
35,800 ₽

Хотите изменить планировку?

Отправьте запрос архитектору и обсудите с ним ваши идеи по перепланировке.

О проекте

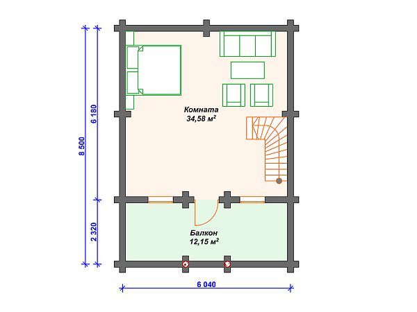
Мансардный дом из бревна 220 мм, габаритами 8.50х6.04 м. Дом с террасой и балконом. Конструкция крыши - простая двухскатная. Вход в дом осуществляется с террасы расположенной во всю ширину дома. Площадь террасы 12 кв м.

Планировка первого этажа очень проста. Заходим с террасы в холл 8.5 кв м, в котором по правой стороне расположена лестница на второй этаж. Их холла попадаем в гостиную 17 кв м. Отсюда предусмотрен вход в с/у 8 кв м с душевой кабиной. Второй этаж занимает одна спальня. Комната просторная, площадью 34.5 кв м. Из комнаты имеется выход на балкон, расположенный на главном фасаде дома. Площадь балкона 12 кв м.

Бюджетный проект небольшого деревянного дома для маленькой семьи.

Аккредитованы в ведущих банках

Корзина
Ваша корзина пуста
Выберите в каталоге интересующий товар и нажмите кнопку "В корзину"
Отложенные товары
Отложенных товаров нет
Выберите в каталоге интересующий товар и нажмите кнопку "В избранное"
Заказать звонок