info@vfstroy.ru
Москва, 1-й Кожевнический переулок, дом 6, строение 1, этаж 3
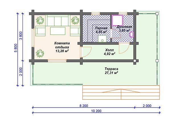
Проект деревянной бани SB4-54 (Б-076)
Характеристики дома:
Площадь дома
54 m2
Кол-во жилых комнат
1
Стоимость проекта АР+КР
30,000 ₽
О проекте
Характеристики проекта SB4-54 (Б-076)
| Классификация архитектора | Б-076 |
| Общая площадь | 54 м2 |
| Количество этажей | одноэтажный |
| Возможный материал кровли | металлочерепица, гибкая черепица, керамическая черепица, композитная черепица, цементно-песчаная черепица, фальцевая кровля |
| Количество жилых комнат | 1 |
| Тип перекрытий | по деревянным балкам |
| Материал стен | оцилиндрованное бревно, профилированный брус, клееный брус |