Проекты домов Оформить
ипотеку
Стройматериалы Участки Строительство
Выберите свой регион строительства
Крымский федеральный округ
Крым
Close mobile menu

Характеристики дома:

Площадь дома

202,45 m2

Кол-во жилых комнат

5
Стоимость проекта ЭП
18,000 ₽

Хотите изменить планировку?

Отправьте запрос архитектору и обсудите с ним ваши идеи по перепланировке.

О проекте

S-202 - перед Вами современный двухэтажный коттедж в минималистичном дизайне, размеры которого позволят комфортно проживать семье из 4-5 человек.

Первый этаж – традиционно дневная зона дома. Здесь есть всё, что только можно себе представить: и гостиная с кухней, и две просторные гардеробные, и гостевая спальня (её, впрочем, можно переделать в кабинет), и полноценный санузел, и конечно же терраса для посиделок теплыми летними вечерами. А вишенкой на торте стал крытый гараж, попасть в который можно прямо из дома – плохая погода Вам будет нипочём.
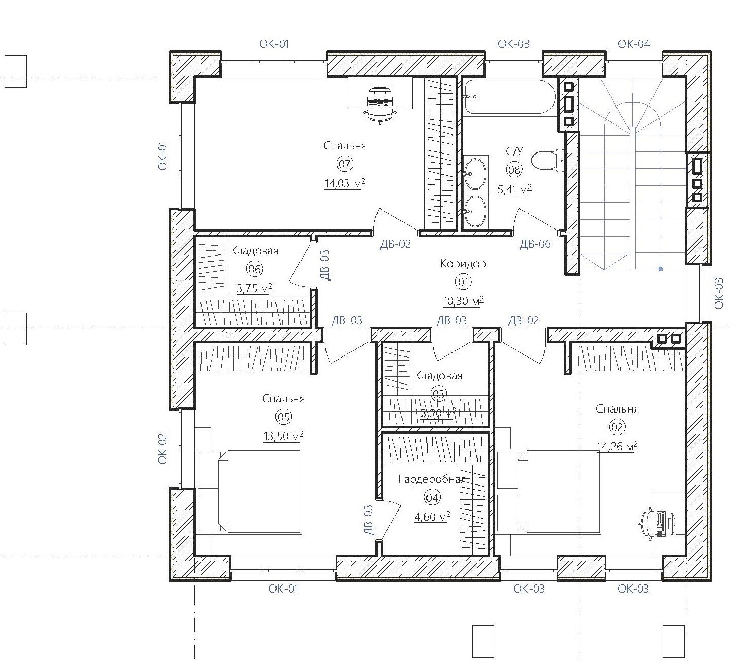
Второй этаж встречает нас тремя просторными спальнями. У одной – своя гардеробная. Еще две кладовые также есть на этаже. Для нужд хозяев на втором этаже спроектирована ванная комната.

Аккредитованы в ведущих банках

Корзина
Ваша корзина пуста
Выберите в каталоге интересующий товар и нажмите кнопку "В корзину"
Отложенные товары
Отложенных товаров нет
Выберите в каталоге интересующий товар и нажмите кнопку "В избранное"
Заказать звонок