Проекты домов Оформить
ипотеку
Стройматериалы Участки Строительство
Выберите свой регион строительства
Крымский федеральный округ
Крым
Close mobile menu

Характеристики дома:

Площадь дома

175,1 m2

Кол-во жилых комнат

2
Стоимость проекта ЭП
17,000 ₽

Хотите изменить планировку?

Отправьте запрос архитектору и обсудите с ним ваши идеи по перепланировке.

О проекте

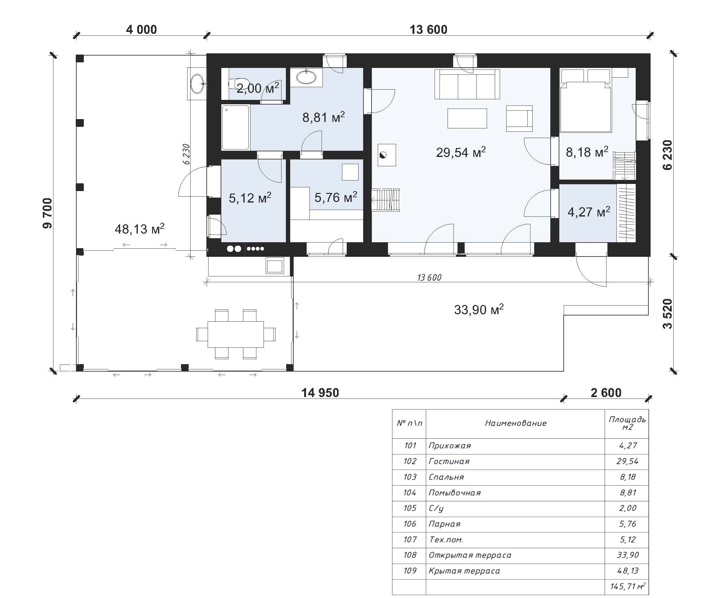
S-93. Вашему вниманию – проект банного домика, который отлично впишется на участок в качестве самостоятельной постройки. И главное, здание это многофункциональное, так как помимо бани может выступать и гостевым домом.
Сама парная с техническим помещением, помывочной и санузлом находится в левой части строения. В центре – большая гостиная, выступающая в том числе и буфером между баней и жилой комнатой. Соответственно, в правой части и находится та самая спальня, которая отлично подойдёт для гостевого размещения.
Большим преимуществом проекта является наличие террасы, часть из которой защищена навесом. То есть даже дождь в теории не сможет помешать времяпрепровождению в приятной компании.


Основные решения, предусмотренные проектом:
Фундамент строения - монолитная ж/б плита.
Все стены дома выполнены из керамического блока Porotherm.

3D Модель

Аккредитованы в ведущих банках

Корзина
Ваша корзина пуста
Выберите в каталоге интересующий товар и нажмите кнопку "В корзину"
Отложенные товары
Отложенных товаров нет
Выберите в каталоге интересующий товар и нажмите кнопку "В избранное"
Заказать звонок