Проекты домов Оформить
ипотеку
Стройматериалы Участки Строительство
Выберите свой регион строительства
Крымский федеральный округ
Крым
Close mobile menu

Характеристики дома:

Площадь дома

200,78 m2

Кол-во жилых комнат

5
Стоимость проекта ЭП
18,000 ₽

Хотите изменить планировку?

Отправьте запрос архитектору и обсудите с ним ваши идеи по перепланировке.

О проекте

S-201 - это двухэтажный дом в стиле Райт с интересной кирпичной облицовкой и вторым светом. Такой дом подойдет для большой семьи из 5-6 человек.

Большая гостиная, совмещенная с кухней, является центральным помещением первого этажа. Продолжением гостиной стала терраса, которая позволит Вам и Вашей семье уютно проводить время на свежем воздухе. От кухни, кстати, отходит кладовое помещение для хранения всего, что может пригодиться хозяйке. На этаже есть комната свободного назначения, из которой можно сделать гостевую спальню, детскую или кабинет. Полноценный санузел и гардероб на этаже тоже присутствуют. Отдельно следует отметить и большой навес на два автомобиля.
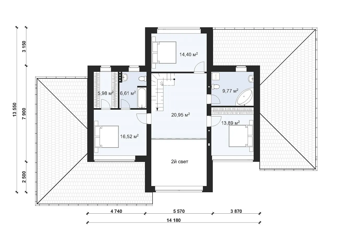
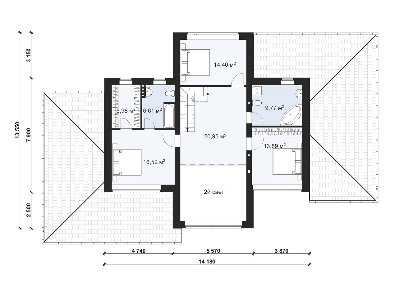
Ночная зона дома, расположенная на втором этаже, состоит из трёх спален. Родительская комната выполнена по принципу мастер-спальни: здесь и собственный большой гардероб, и ванная комната. Для еще двух спален спроектирован большой санузел и с ванной, и с душевой кабиной.

Аккредитованы в ведущих банках

Корзина
Ваша корзина пуста
Выберите в каталоге интересующий товар и нажмите кнопку "В корзину"
Отложенные товары
Отложенных товаров нет
Выберите в каталоге интересующий товар и нажмите кнопку "В избранное"
Заказать звонок