Проекты домов Оформить
ипотеку
Стройматериалы Участки Строительство
Выберите свой регион строительства
Крымский федеральный округ
Крым
Close mobile menu

Характеристики дома:

Площадь дома

162,5 m2

Кол-во жилых комнат

4
Стоимость проекта ЭП
17,000 ₽

Хотите изменить планировку?

Отправьте запрос архитектору и обсудите с ним ваши идеи по перепланировке.

О проекте

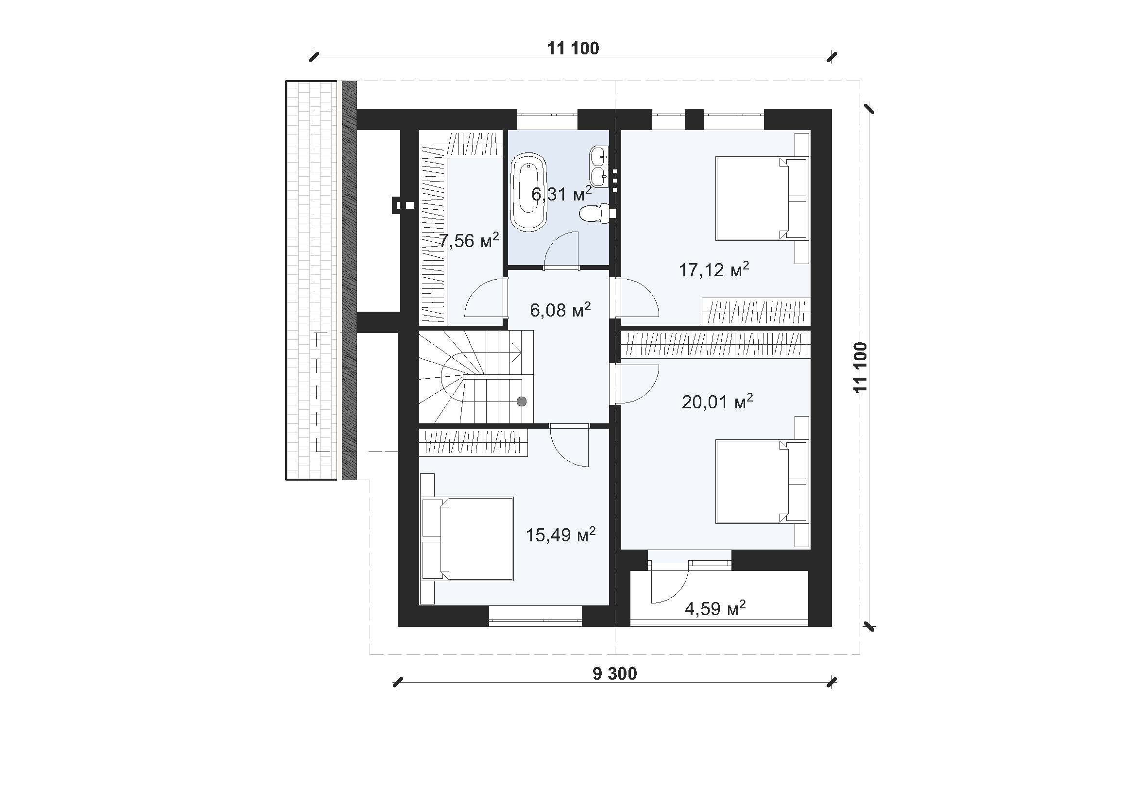
S-162 - Этот проект представляет собой компактный двухэтажный дом с балконом на втором этаже. Этот дом придется по вкусу семье из 4-5 человек.

Почти 60 квадратных метров приходится на комбинацию гостиной и кухни. Для комфорта рядом спроектировали полноценную ванную комнату, а рядом с ней – котельную.

Поднимаемся на второй этаж и видим слева большую гардеробную и просторный санузел. Три полноценных спальни позволят разместиться всей семье без исключений. А вишенкой на торте станет балкон в одной из спален – представьте, как приятно там встречать новый день с чашкой кофе.

Аккредитованы в ведущих банках

Корзина
Ваша корзина пуста
Выберите в каталоге интересующий товар и нажмите кнопку "В корзину"
Отложенные товары
Отложенных товаров нет
Выберите в каталоге интересующий товар и нажмите кнопку "В избранное"
Заказать звонок