Проекты домов Оформить
ипотеку
Стройматериалы Участки Строительство
Выберите свой регион строительства
Крымский федеральный округ
Крым
Close mobile menu

Характеристики дома:

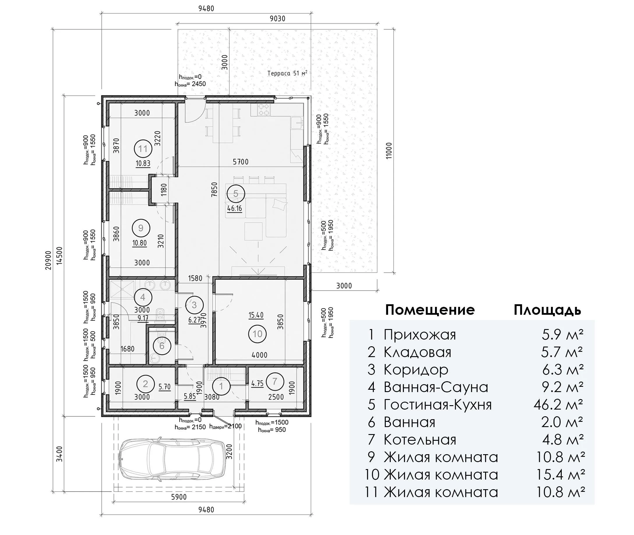
Площадь дома

136 m2

Кол-во жилых комнат

4
Проект с подрядом

Хотите изменить планировку?

Отправьте запрос архитектору и обсудите с ним ваши идеи по перепланировке.

О проекте

SP-117. Этот красивый дом, выполненный в хай-тек стилистике, станет отличным выбором для семьи из 4 человек. Его аккуратный экстерьер и продуманный интерьер создают беспроигрышную комбинацию – сразу хочется представить, как уже переезжаешь в этот дом.

Слева от входа удобно расположилась гардеробная для всей верхней одежды, а дальше по коридору – гостевой санузел и еще одна большая ванная комната. Тут же слева мы видим две спальни. А третья – скорее всего используемая в качестве родительской – предусмотрительно спроектирована с другой стороны, рядом с гостиной.

Кухня-гостиная – это отдельная тема для разговора. Здесь 46 метров единого пространства, где «уживаются» обеденный стол, кухня и диванная зона для просмотра фильмов и сериалов. А ещё из гостиной организован выход на заднюю террасу, на которой можно проводить время в погожие дни.

Технология. Производство домокомплектов выполнено из трехслойных бетонных панелей. Панели привозят на площадку уже в готовом виде. В них заранее предусмотрены проемы под двери и окна. Внутри есть специальные каналы для электропроводки и коммуникаций, что избавляет от необходимости в дополнительном рабочем процессе. Внутренняя сторона стен не нуждается в цементной штукатурке и готова к финишной отделке. Высота потолков - 2,96 метра.

Возведение коробки одноэтажного дома со всеми перегородками при готовом фундаменте занимает 5-7 дней. Средний срок службы — более 150 лет.

Аккредитованы в ведущих банках

Корзина
Ваша корзина пуста
Выберите в каталоге интересующий товар и нажмите кнопку "В корзину"
Отложенные товары
Отложенных товаров нет
Выберите в каталоге интересующий товар и нажмите кнопку "В избранное"
Заказать звонок