Проекты домов Оформить
ипотеку
Стройматериалы Участки Строительство
Выберите свой регион строительства
Крымский федеральный округ
Крым
Close mobile menu

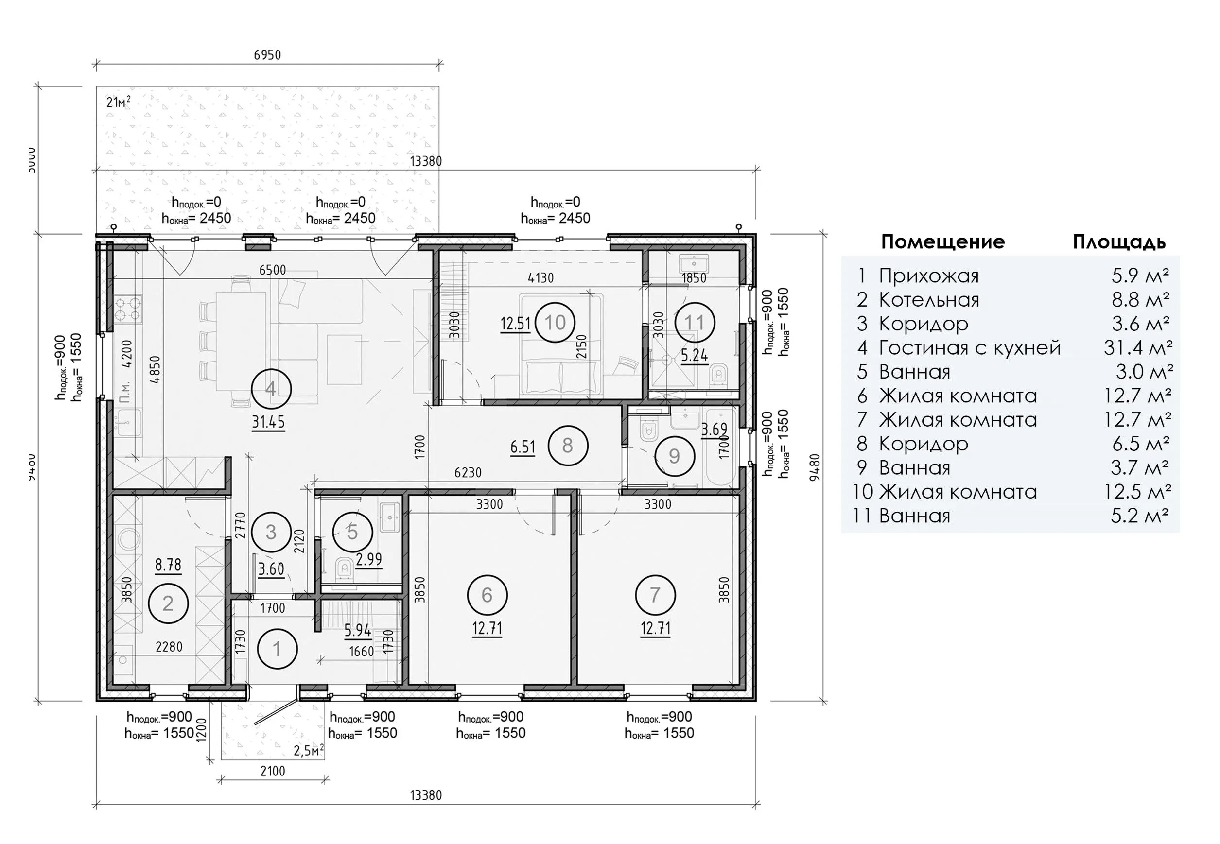
Характеристики дома:

Площадь дома

106 m2

Кол-во жилых комнат

4
Проект с подрядом

Хотите изменить планировку?

Отправьте запрос архитектору и обсудите с ним ваши идеи по перепланировке.

О проекте

SP-106. Этот проект представляет из себя стильное одноэтажное строение, где с комфортом может разместиться семья с двумя детьми. Экстерьер выполнен в современном минималистичном стиле с использованием панорамного остекления.

Начнём обзор дома с прихожей, где оставляем верхнюю одежду и проходим в коридор. Слева – большое помещение котельной, где также могут храниться необходимые в быту вещи. Далее нас встречает большая кухня-гостиная, где вы будете устраивать семейные ужины и совместные просмотры любимых фильмов. Тут же рядом спроектирован санузел.

В правой части дома две детские спальни и одна мастер-спальня с собственной ванной комнатой. Соответственно, для двух детских комнат организовали еще одну полноценную душевую. Словом, пространство дома крайне функционально и спроектировано так, чтобы все жители ощущали уют и комфорт.

Технология. Производство домокомплектов выполнено из трехслойных бетонных панелей. Панели привозят на площадку уже в готовом виде. В них заранее предусмотрены проемы под двери и окна. Внутри есть специальные каналы для электропроводки и коммуникаций, что избавляет от необходимости в дополнительном рабочем процессе. Внутренняя сторона стен не нуждается в цементной штукатурке и готова к финишной отделке. Высота потолков - 2,96 метра.

Возведение коробки одноэтажного дома со всеми перегородками при готовом фундаменте занимает 5-7 дней. Средний срок службы — более 150 лет.

Аккредитованы в ведущих банках

Корзина
Ваша корзина пуста
Выберите в каталоге интересующий товар и нажмите кнопку "В корзину"
Отложенные товары
Отложенных товаров нет
Выберите в каталоге интересующий товар и нажмите кнопку "В избранное"
Заказать звонок