Проекты домов Оформить
ипотеку
Стройматериалы Участки Строительство
Выберите свой регион строительства
Крымский федеральный округ
Крым
Close mobile menu

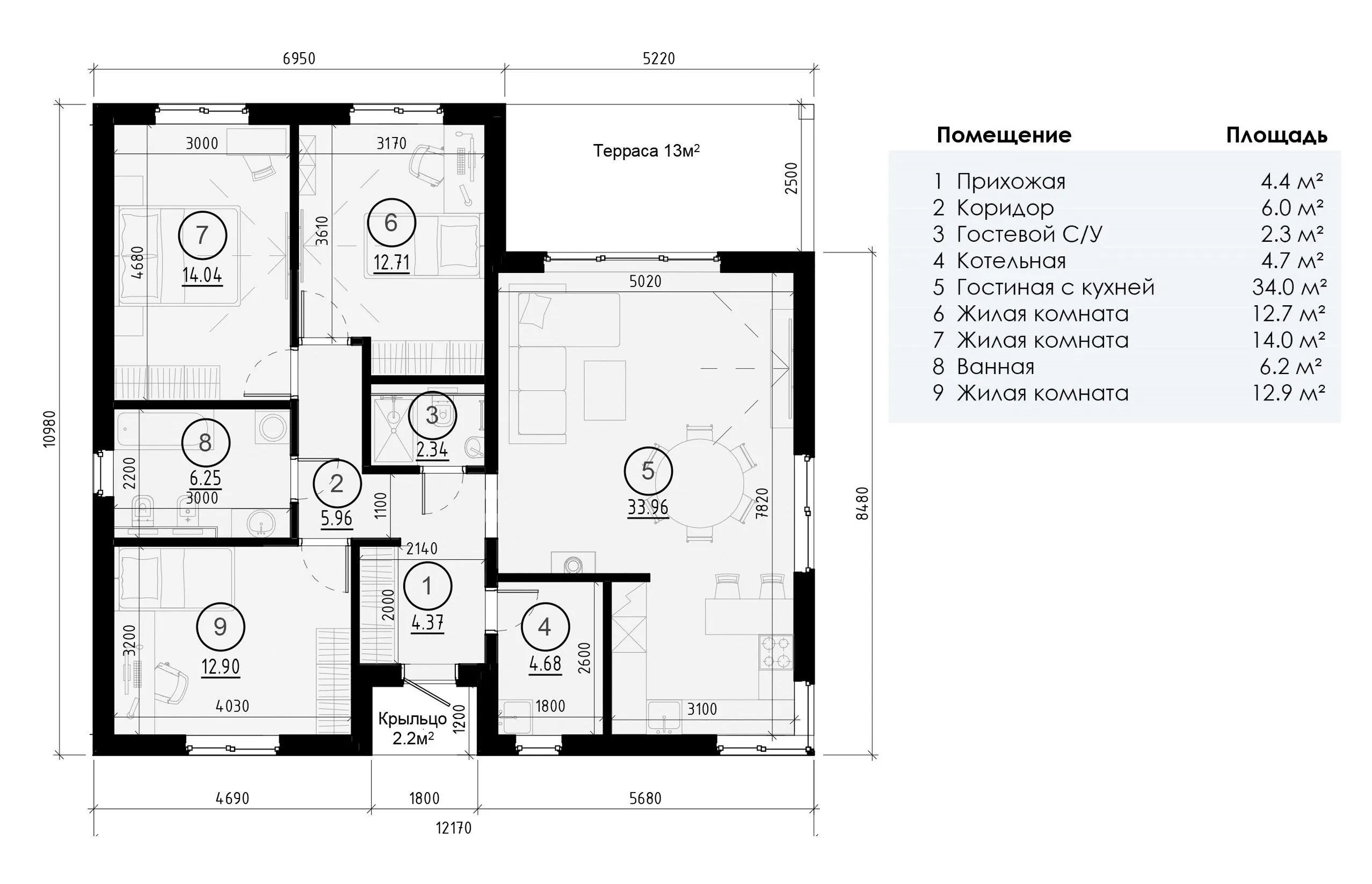
Характеристики дома:

Площадь дома

110,2 m2

Кол-во жилых комнат

4
Проект с подрядом

Хотите изменить планировку?

Отправьте запрос архитектору и обсудите с ним ваши идеи по перепланировке.

О проекте

SP-97-1. Вашему вниманию – проект стильного одноэтажного дома с тремя спальнями и двумя санузлами. Сложно представить более оптимальную планировку для семьи с двумя детьми.

Левая и правая части дома являются соответственно ночной и дневной зонами. Дневная – это внушительных размеров гостиная, совмещенная с кухней и столовой. Места здесь хватит не только на вашу семью, но и на друзей, которые могут заехать в гости на совместный ужин.

Ночная зона включает в себя три просторных спальни и две ванные комнаты. Есть у дома и небольшая терраса, которую от осадков защищает крыша. Там при желании можно обустроить небольшое «место сибарита» с креслом и журнальным столиком.

Технология. Производство домокомплектов выполнено из трехслойных бетонных панелей. Панели привозят на площадку уже в готовом виде. В них заранее предусмотрены проемы под двери и окна. Внутри есть специальные каналы для электропроводки и коммуникаций, что избавляет от необходимости в дополнительном рабочем процессе. Внутренняя сторона стен не нуждается в цементной штукатурке и готова к финишной отделке. Высота потолков - 2,96 метра.

Возведение коробки одноэтажного дома со всеми перегородками при готовом фундаменте занимает 5-7 дней. Средний срок службы — более 150 лет.

Аккредитованы в ведущих банках

Корзина
Ваша корзина пуста
Выберите в каталоге интересующий товар и нажмите кнопку "В корзину"
Отложенные товары
Отложенных товаров нет
Выберите в каталоге интересующий товар и нажмите кнопку "В избранное"
Заказать звонок