Проекты домов Оформить
ипотеку
Стройматериалы Участки Строительство
Выберите свой регион строительства
Крымский федеральный округ
Крым
Close mobile menu

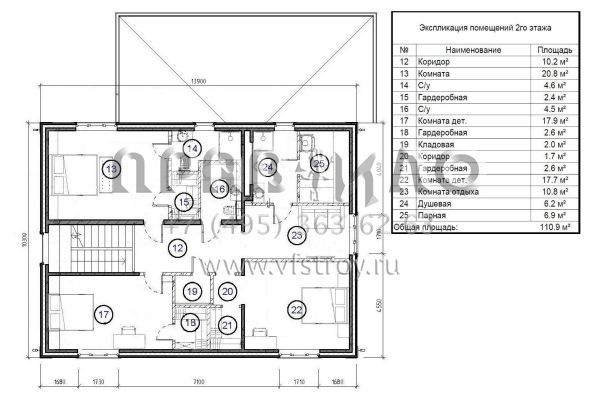
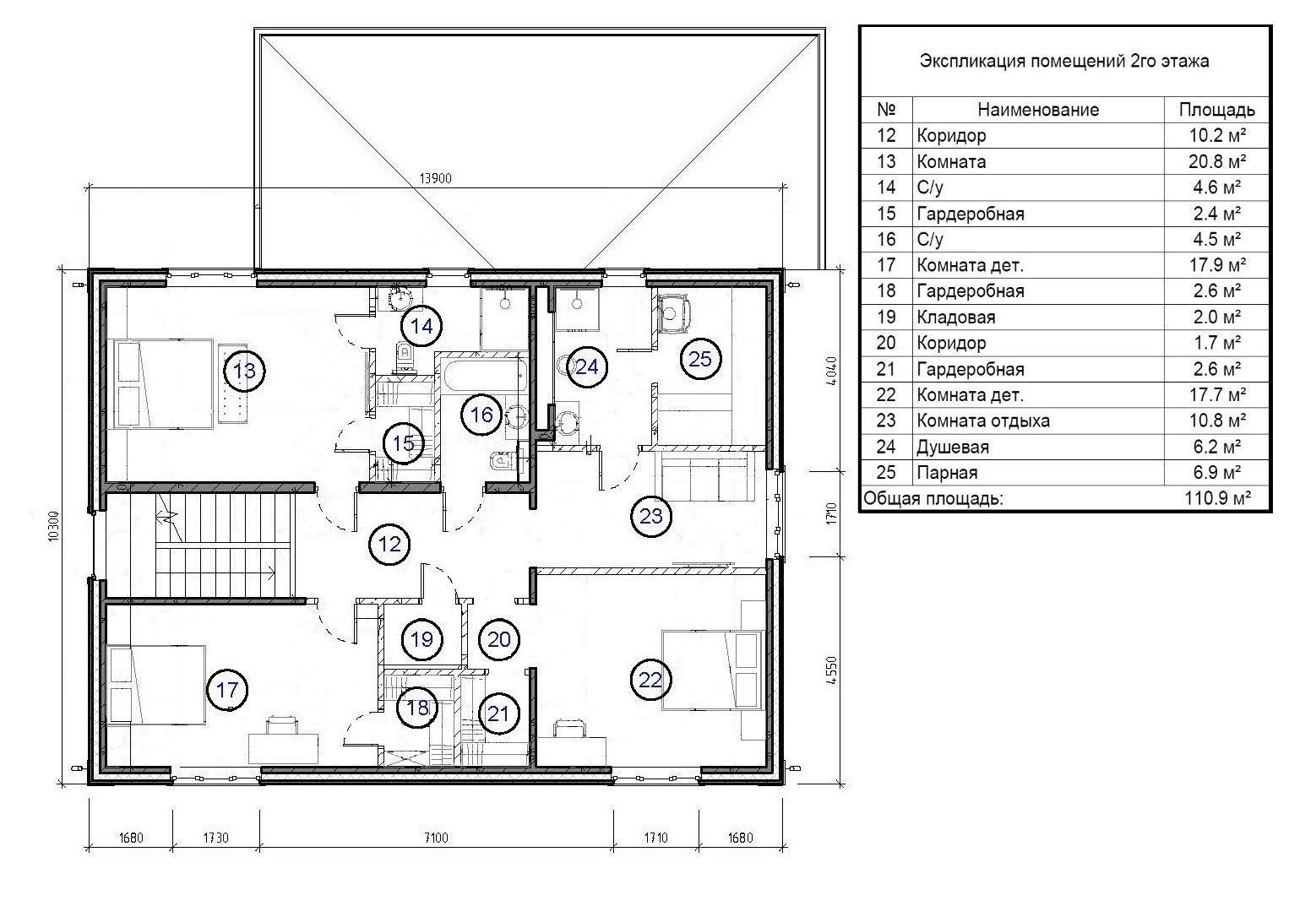
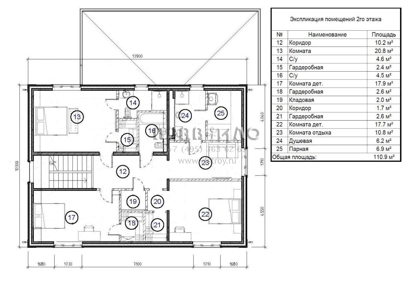
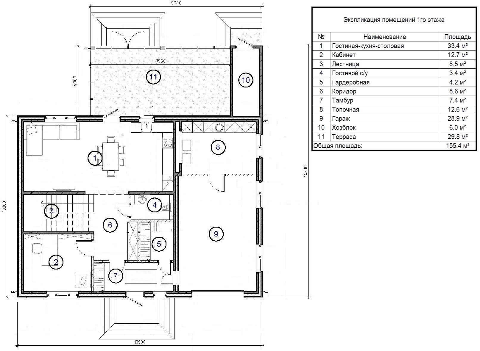
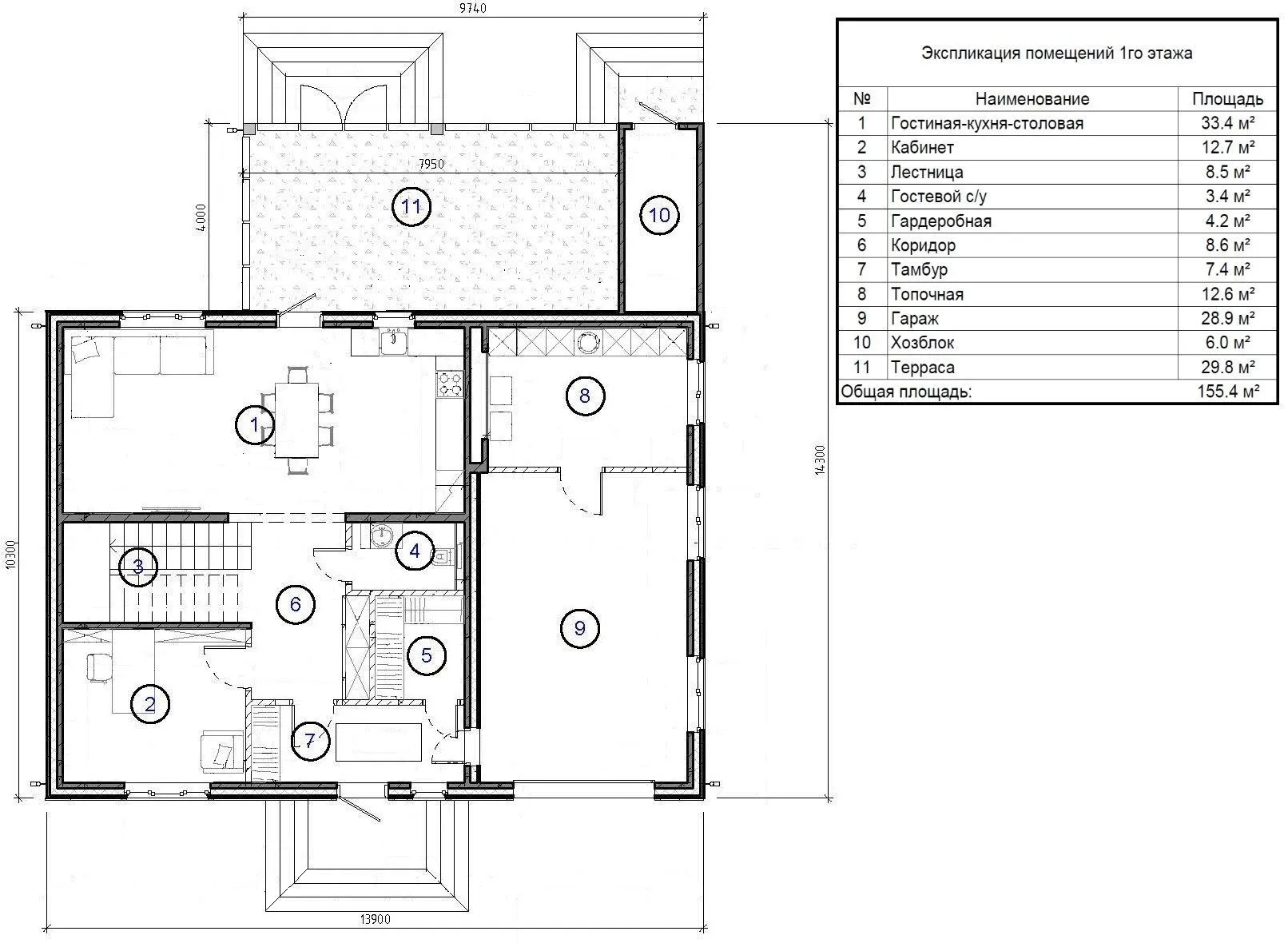
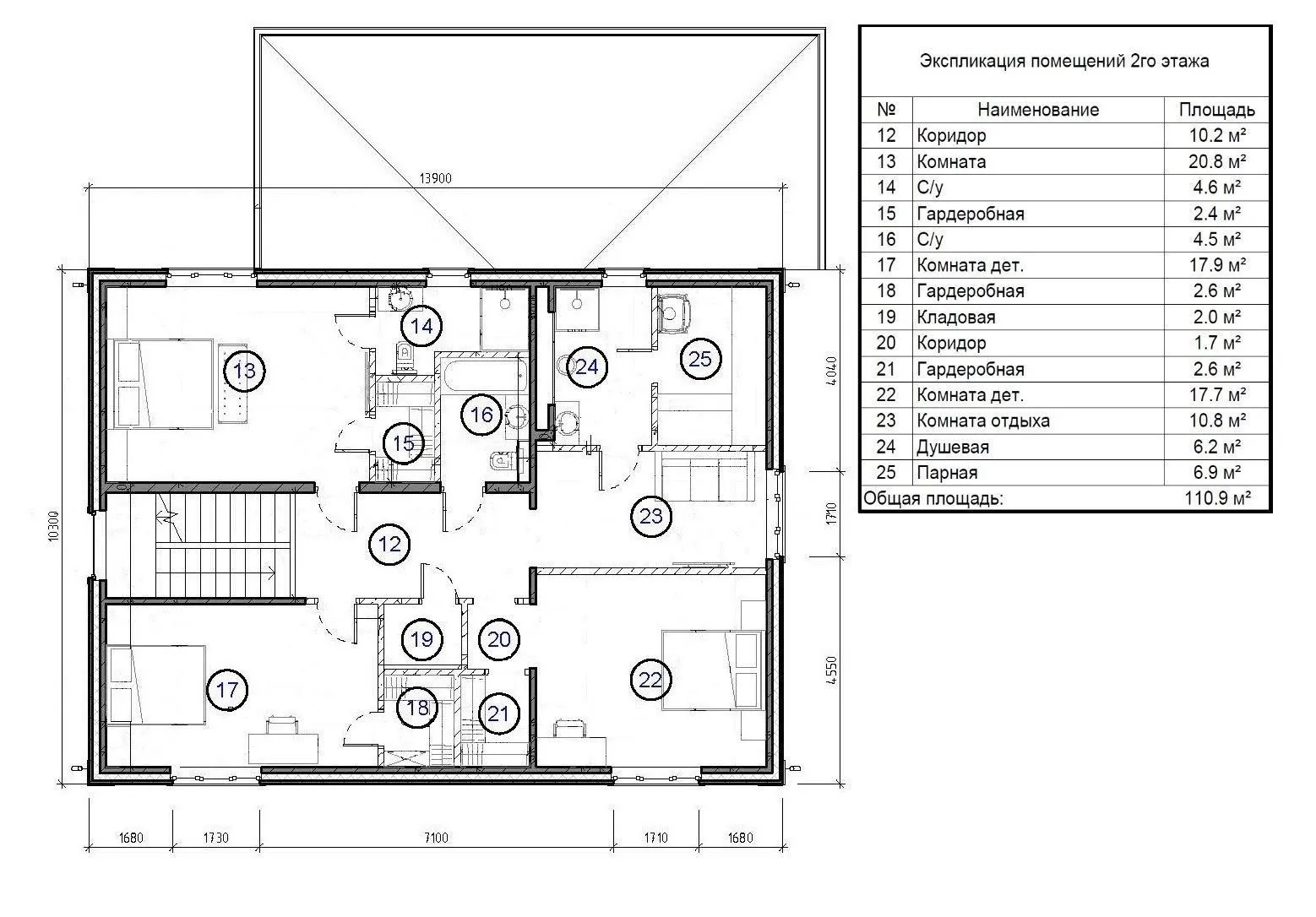
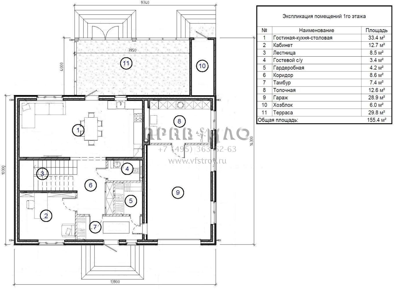
Характеристики дома:

Площадь дома

236,5 m2

Кол-во жилых комнат

6+
Проект с подрядом

Хотите изменить планировку?

Отправьте запрос архитектору и обсудите с ним ваши идеи по перепланировке.

О проекте

SP-236. Продуманный во всех отношениях проект дома для семьи из 3-4 человек. 

Высота потолков - 2,96 метра.

Технология. Производство домокомплектов выполнено из трехслойных бетонных панелей. Панели привозят на площадку уже в готовом виде. В них заранее предусмотрены проемы под двери и окна. Внутри есть специальные каналы для электропроводки и коммуникаций, что избавляет от необходимости в дополнительном рабочем процессе. Внутренняя сторона стен не нуждается в цементной штукатурке и готова к финишной отделке.

Возведение коробки одноэтажного дома со всеми перегородками при готовом фундаменте занимает 5-7 дней. Средний срок службы — более 150 лет.

Аккредитованы в ведущих банках

Корзина
Ваша корзина пуста
Выберите в каталоге интересующий товар и нажмите кнопку "В корзину"
Отложенные товары
Отложенных товаров нет
Выберите в каталоге интересующий товар и нажмите кнопку "В избранное"
Заказать звонок