Проекты домов Оформить
ипотеку
Стройматериалы Участки Строительство
Выберите свой регион строительства
Крымский федеральный округ
Крым
Close mobile menu

Характеристики дома:

Площадь дома

319 m2

Кол-во жилых комнат

5
Стоимость проекта АР+КР
108,160 ₽

Хотите изменить планировку?

Отправьте запрос архитектору и обсудите с ним ваши идеи по перепланировке.

О проекте

S8-319 (Дом с Видом 6 B). S8-319 представляет собой изысканный и стильный коттедж, который идеально подходит для спокойной местности. Он отличается умно продуманным дизайном и тщательно разработанной планировкой. Внешний вид дома выглядит очень впечатляющим и будет прекрасно гармонировать с любым природным ландшафтом. Фасады дома выполнены в соответствии с всеми современными архитектурными тенденциями.
На первом этаже дома расположены помещения для дневного пребывания. Одним из главных преимуществ такого дома является довольно просторный объем гостиной в 50,61 м2, который плавно перетекает в столовую и кухню. Объединенное помещение имеет выход на просторную террасу и сад, что подчеркивает гостеприимную и теплую атмосферу дома. Этот эффект усиливается благодаря большому количеству естественного света, проникающего через широкие стеклянные окна. Рядом с гостиной расположено помещение для гостей, которое дополняет общую зону отдыха. Для релаксации и отдыха архитекторы данного проекта предусмотрели помещение оранжереи. Оранжерея может быть использована по-разному: как место для отдыха, домашняя теплица для выращивания зелени, овощей, фруктов и, конечно же, прекрасных цветов. Оранжерея станет любимым местом для отдыха ваших гостей и членов вашей семьи. Кроме того, на первом этаже предусмотрена прихожая с гардеробом и доступом в большой гараж. В гаражной части здания предусмотрено место для размещения автономной котельной.
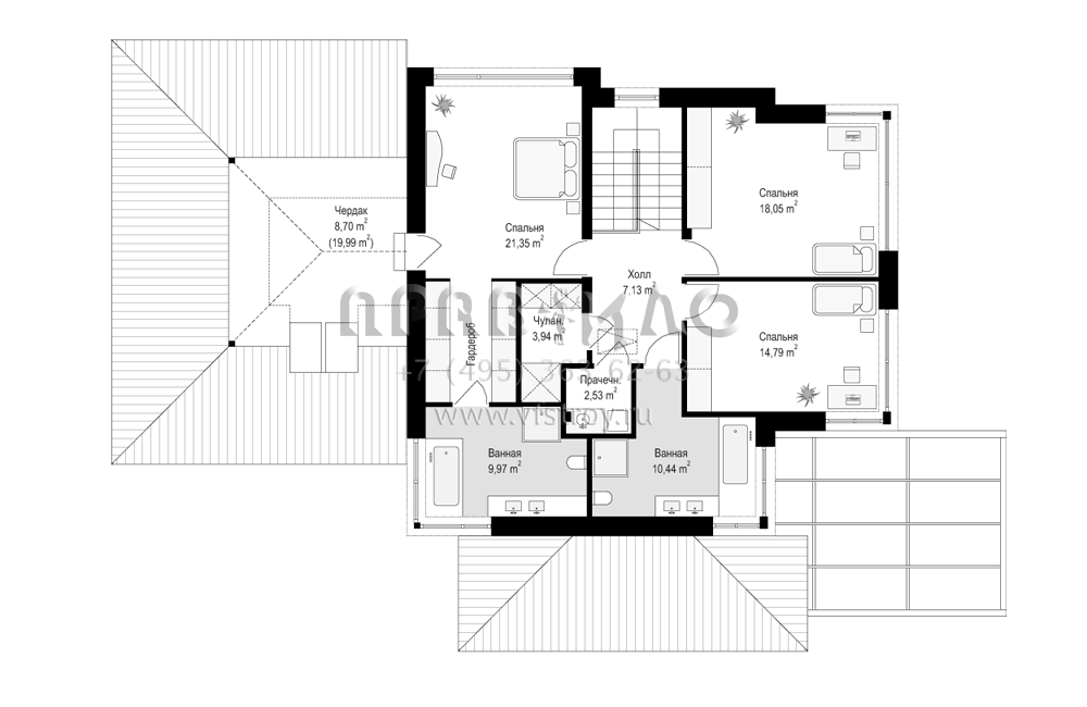
Спальная зона с личными комнатами хозяев дома расположена на втором этаже здания. Здесь находятся три удобные и хорошо оснащенные спальни, одна из которых оборудована личным гардеробом и ванной комнатой. Две другие комнаты оснащены общей светлой ванной комнатой. Все помещения второго этажа, включая кладовку и прачечную, объединяет большой и светлый лестничный холл.

Аккредитованы в ведущих банках

Корзина
Ваша корзина пуста
Выберите в каталоге интересующий товар и нажмите кнопку "В корзину"
Отложенные товары
Отложенных товаров нет
Выберите в каталоге интересующий товар и нажмите кнопку "В избранное"
Заказать звонок