Проекты домов Оформить
ипотеку
Стройматериалы Участки Строительство
Выберите свой регион строительства
Крымский федеральный округ
Крым
Close mobile menu

Характеристики дома:

Площадь дома

314 m2

Кол-во жилых комнат

6+
Стоимость проекта АР+КР
81,100 ₽

Хотите изменить планировку?

Отправьте запрос архитектору и обсудите с ним ваши идеи по перепланировке.

О проекте

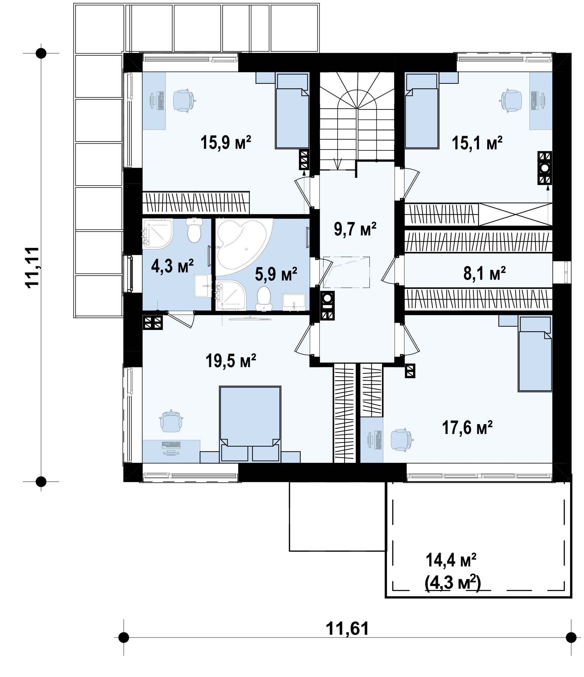
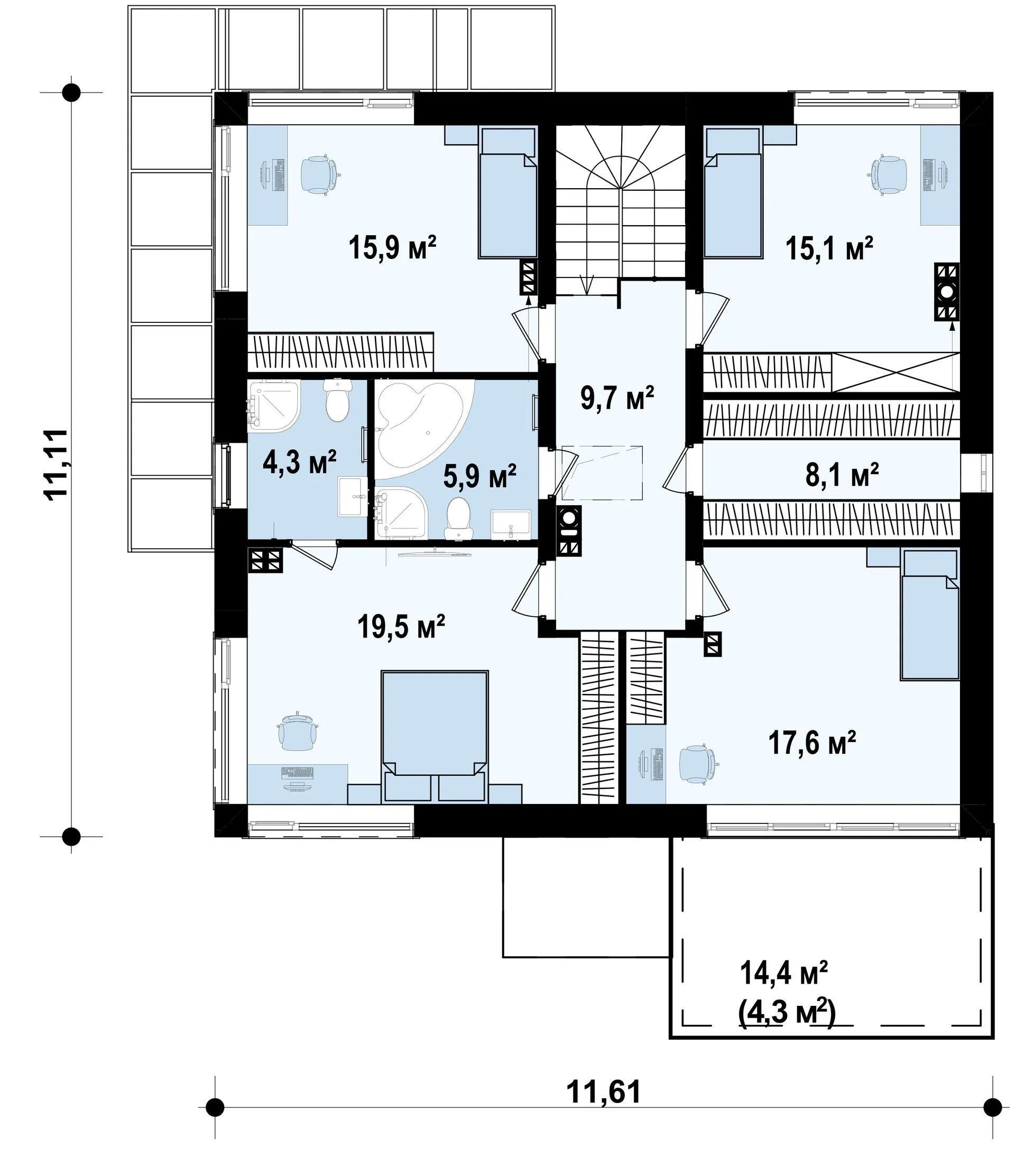
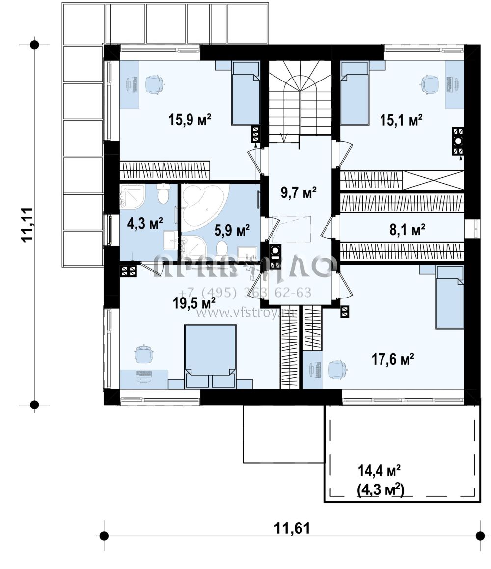
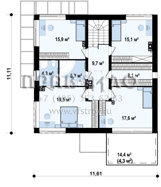
S3-314 (Zx7 P) это современный двухэтажный дом с гаражом на два автомобиля, который выступает вперед, что делает его идеальным для узких участков. Его характерная кубическая форма покрыта вальмовой крышей и дополнена деревянными элементами на фасаде. Проект отличается четкой функциональной планировкой. Из прихожей можно пройти в холл и гараж. Холл, разделяющий первый этаж на дневную и хозяйственную зоны, включает место для больших шкафов. Хозяйственное помещение доступно как через гараж, так и через ванную комнату. В конце холла расположена лестница, ведущая в подвальное помещение, спроектированное под всей площадью дома и состоящее из четырех комнат для удобства. Просторная гостиная, объединенная с обеденной зоной и открытой кухней, создает комфортное дневное пространство с выходом на частично крытую террасу. Камин встроен в стену между столовой и холлом. На втором этаже находятся четыре удобные спальни, гардеробная и две ванные комнаты, одна из которых является приватной. Одна из спален имеет выход на террасу над гаражом. Все комнаты второго этажа являются полноценными помещениями без скосов, что повышает их комфорт и удобство.
Уникальные особенности внешнего вида дома:
 • Классические формы с современными акцентами: Дом сочетает классические архитектурные элементы, такие как скатная крыша, с современными деталями.
• Использование дерева: Деревянные отделки фасада придают дому тепло и уют.
• Просторные окна и светлые оттенки: Большие окна и светлые цветовые решения делают дом светлым и визуально привлекательным, акцентируя внимание на природном освещении и уюте внутри.
• Баланс функциональности и эстетики: Удачное сочетание функциональных элементов, таких как большие окна и террасы, с эстетически привлекательным дизайном.
• Открытые и закрытые пространства: В доме гармонично сочетаются открытые зоны (например, терраса и балкон) с закрытыми, создавая сбалансированное пространство для жизни.

Аккредитованы в ведущих банках

Корзина
Ваша корзина пуста
Выберите в каталоге интересующий товар и нажмите кнопку "В корзину"
Отложенные товары
Отложенных товаров нет
Выберите в каталоге интересующий товар и нажмите кнопку "В избранное"
Заказать звонок