Проекты домов Оформить
ипотеку
Стройматериалы Участки Строительство
Выберите свой регион строительства
Крымский федеральный округ
Крым
Close mobile menu

Характеристики дома:

Площадь дома

236 m2

Кол-во жилых комнат

5
Стоимость проекта АР+КР
88,300 ₽

Хотите изменить планировку?

Отправьте запрос архитектору и обсудите с ним ваши идеи по перепланировке.

О проекте

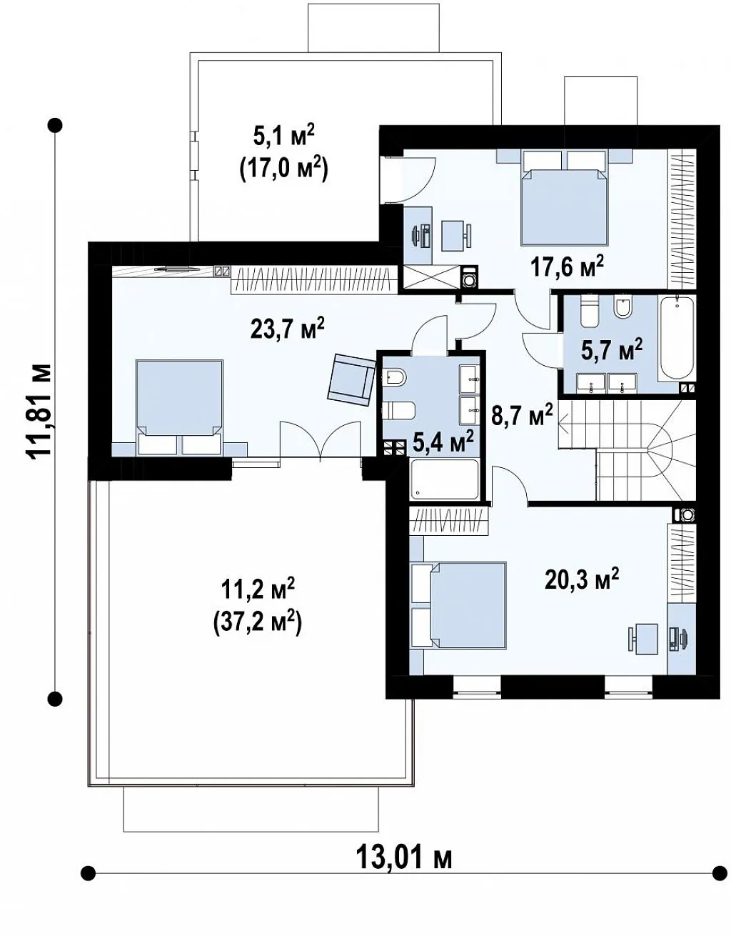
S3-236-5 (Zx120 v2) - Это двухэтажный дом с плоской крышей и гаражом на две машины, большим количеством вспомогательных помещений и просторными спальнями.

Попасть в дом можно с крытого крыльца или гаража. Рядом со входом находится котельная, где можно хранить садовый инвентарь, велосипеды, инструменты. Далее коридор ведет в просторную гостиную, где семья будет собираться вечером и по выходным. 

Дневная зона имеет открытую планировку. Кухня является частью гостиной и отделена от остального помещения островом с обеденным столом. Эффектным дополнением интерьера служит камин, который владелец коттеджа будет разжигать холодными зимними вечерами. 

В доме находится четыре спальни и три ванные комнаты. Владельцы дома будут пользоваться собственным сантехническим помещением. Но главное преимущество их спальни — широкий выход на просторную веранду над гаражом. 

Аккредитованы в ведущих банках

Корзина
Ваша корзина пуста
Выберите в каталоге интересующий товар и нажмите кнопку "В корзину"
Отложенные товары
Отложенных товаров нет
Выберите в каталоге интересующий товар и нажмите кнопку "В избранное"
Заказать звонок