Проекты домов Оформить
ипотеку
Стройматериалы Участки Строительство
Выберите свой регион строительства
Крымский федеральный округ
Крым
Close mobile menu

Характеристики дома:

Площадь дома

170,7 m2

Кол-во жилых комнат

6+
Стоимость проекта АР+КР
50,800 ₽

Хотите изменить планировку?

Отправьте запрос архитектору и обсудите с ним ваши идеи по перепланировке.

О проекте

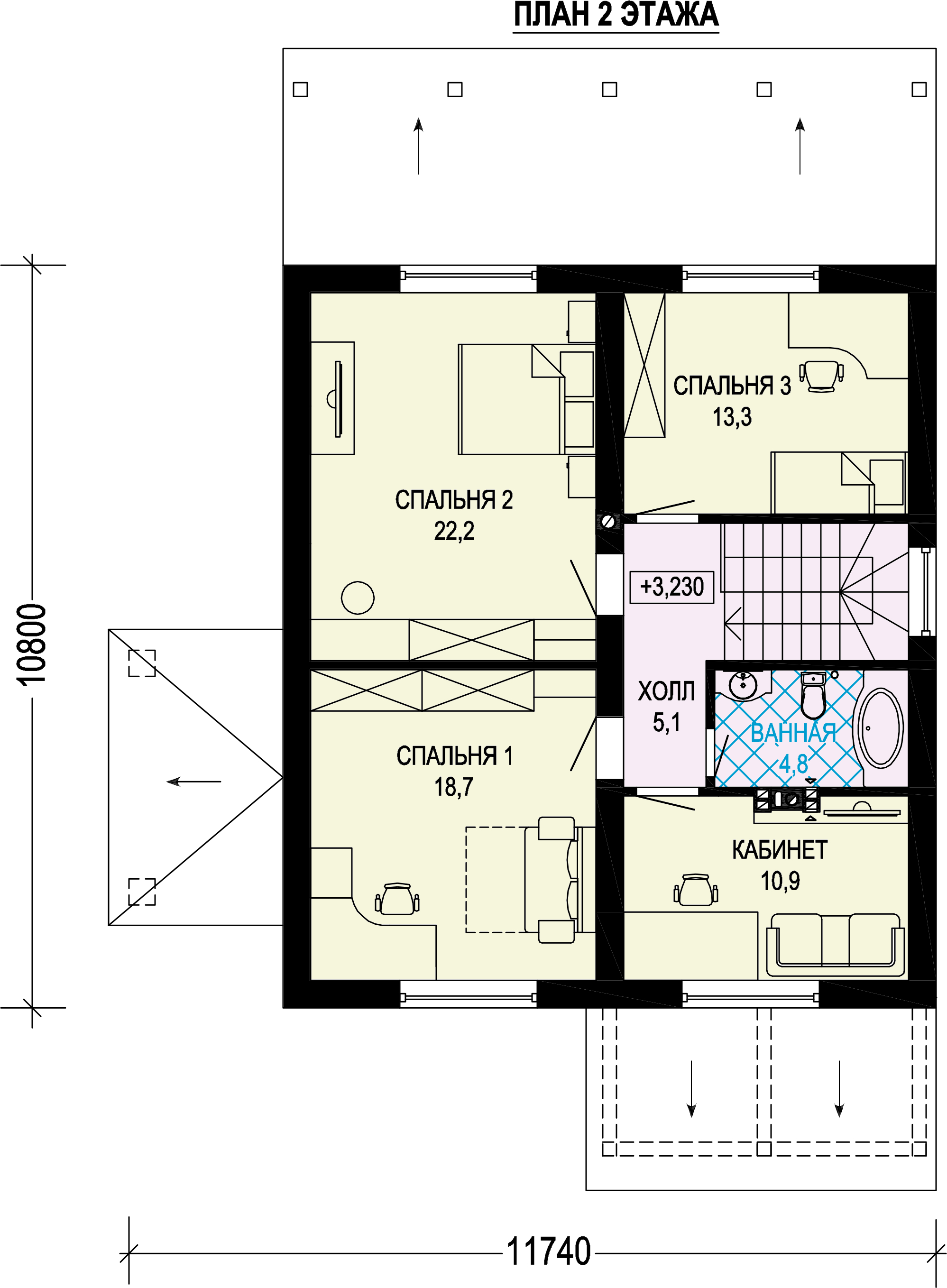
S7-170 (3-62) Дом в классическом стиле с минеральной отделкой мог бы показаться скучным, если бы не большой застекленный эркер в гостиной и просторная терраса в задней части. Коттедж можно выбрать в качестве постоянного жилища или построить его в качестве очень комфортной дачи. Владельцам точно понравится гостиная, площадь которой составляет 40 м2. Кухонная зона не отделена, но разделение достигается за счет обеденного стола в эркере. Через холл первого уровня легко попасть в гостевую комнату, котельную и санузел. Если первый этаж больше подходит для дневных занятий, второй полностью отведен под ночной сон. Для этого там сделали четыре жилые комнаты и общую ванную. Одно из помещений можно превратить в рабочую зону, чтобы решать деловые вопросы, не тратя времени на поездки в офис. В качестве материала для постройки стен используется газобетон, что позволяет сократить расходы на возведение без ущерба энергоэффективности.

Аккредитованы в ведущих банках

Корзина
Ваша корзина пуста
Выберите в каталоге интересующий товар и нажмите кнопку "В корзину"
Отложенные товары
Отложенных товаров нет
Выберите в каталоге интересующий товар и нажмите кнопку "В избранное"
Заказать звонок