Проекты домов Оформить
ипотеку
Стройматериалы Участки Строительство
Выберите свой регион строительства
Крымский федеральный округ
Крым
Close mobile menu

Характеристики дома:

Площадь дома

187,3 m2

Кол-во жилых комнат

4
Стоимость проекта АР+КР
56,800 ₽

Хотите изменить планировку?

Отправьте запрос архитектору и обсудите с ним ваши идеи по перепланировке.

О проекте

Этот проект представляет собой статусный двухэтажный коттедж в хай-тек стиле с встроенным гаражом на один автомобиль. Планировка дома рассчитана на семью с двумя детьми.
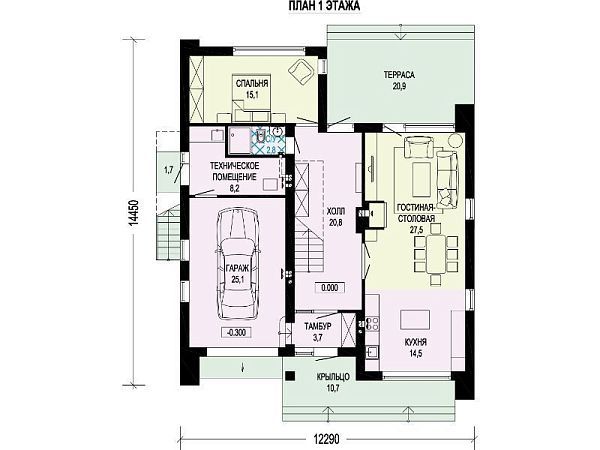
Заехав в гараж, мы сразу можем зайти в дом, минуя непогоду. Оказываемся в большой гостиной, объединенной с кухней. Из неё сразу есть и выход на просторную террасу. Это внушительное пространство и будет являться местом сбора семьи и друзей для совместного времяпрепровождения. На этаже также есть ванная комната и полноценная спальня.
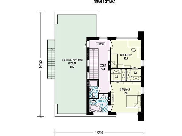
На втором этаже еще две спальни, и у каждой – своя гардеробная. Есть небольшой санузел и просторная ванная комната.
Но главное преимущество дома – это конечно же эксплуатируемая кровля, где можно поставить лежаки, стол или оборудовать пространство любым другим подходящим образом.

Наружная отделка: штукатурка, деревянная рейка.
Высота первого этажа    2950 мм.
Высота второго этажа    2920 мм.
Общая высота дома    7600 мм.

Аккредитованы в ведущих банках

Корзина
Ваша корзина пуста
Выберите в каталоге интересующий товар и нажмите кнопку "В корзину"
Отложенные товары
Отложенных товаров нет
Выберите в каталоге интересующий товар и нажмите кнопку "В избранное"
Заказать звонок