Проекты домов Оформить
ипотеку
Стройматериалы Участки Строительство
Выберите свой регион строительства
Крымский федеральный округ
Крым
Close mobile menu

Характеристики дома:

Площадь дома

178,0 m2

Кол-во жилых комнат

6+
Стоимость проекта АР+КР
52,800 ₽

Хотите изменить планировку?

Отправьте запрос архитектору и обсудите с ним ваши идеи по перепланировке.

О проекте

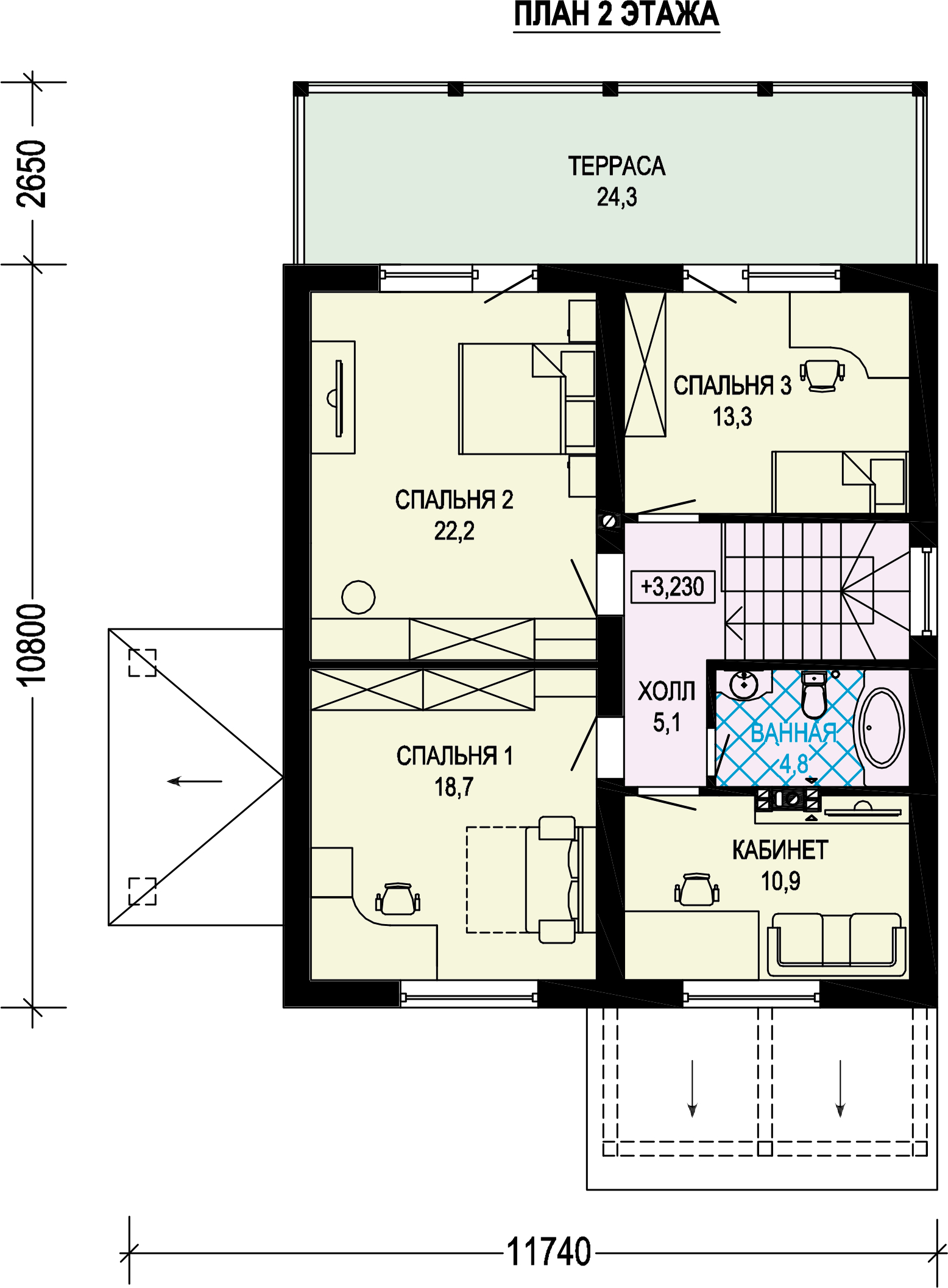
S7-178 (3-62а) Двухэтажный дом, основное назначение которого — стать постоянным местом жительства семьи или убежищем, где приятно отдохнуть от суеты большого города. Чтобы проживающие в нем люди насладились свежим воздухом и окружающей природой, дизайнеры позаботились о двух крытых террасах, расположенных на первом и втором этажах постройки. Недостатка в свободном пространстве для приема гостей и родственников здесь не будет. Гостиная-столовая занимает площадь почти 40 кв. м. В нее интегрирована зона для готовки еды. Но для размещения обеденного стола инженеры предлагают использовать застекленный эркер. В проектной документации заложена возможность установки настоящего камина. В нем можно разводить огонь, который добавляет комнате уюта зимой. Для посещения днем внизу есть отдельный санузел. Рядом с ним располагается небольшая кладовая, а с другой стороны — котельная. Наверху находятся четыре спальни и общая ванная комната.

Аккредитованы в ведущих банках

Корзина
Ваша корзина пуста
Выберите в каталоге интересующий товар и нажмите кнопку "В корзину"
Отложенные товары
Отложенных товаров нет
Выберите в каталоге интересующий товар и нажмите кнопку "В избранное"
Заказать звонок