Проекты домов Оформить
ипотеку
Стройматериалы Участки Строительство
Выберите свой регион строительства
Крымский федеральный округ
Крым
Close mobile menu

Характеристики дома:

Площадь дома

195 m2

Кол-во жилых комнат

5
Стоимость проекта АР+КР
56,800 ₽

Хотите изменить планировку?

Отправьте запрос архитектору и обсудите с ним ваши идеи по перепланировке.

О проекте

Это крайне интересный дом А-типа с террасой по всему периметру и уличным бассейном. Размеры дома идеально подойдут для проживания семьи с двумя детьми.
Терраса – неотъемлемая часть дома, его продолжение и главная «фишка». С террасы мы и попадаем в здание, которое встречает нас большой гостиной, совмещенной с кухней. На первом этаже есть полноценная спальня, просторная душевая с собственной сауной, а также дополнительный санузел. Но и это не всё: здесь же находится и комната отдыха, которую можно преобразовать в ещё одно спальное место.
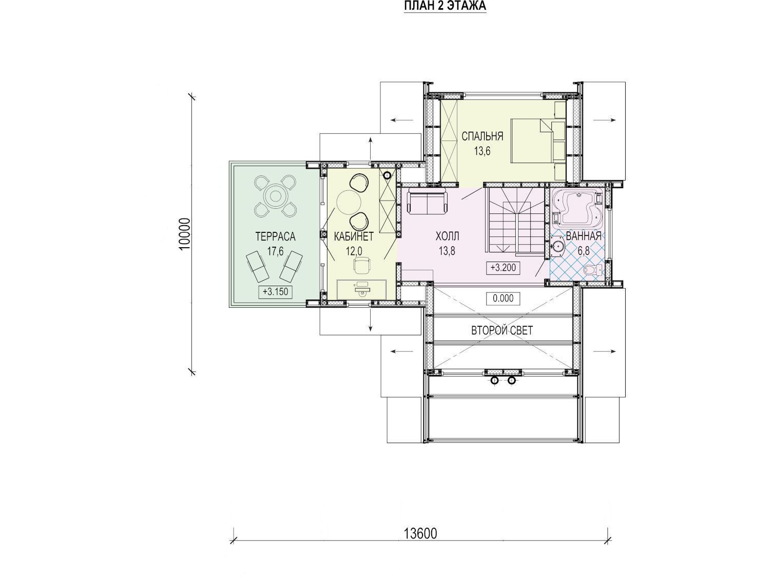
На втором этаже спроектирована спальня с почти 7-метровой ванной, а также кабинет для любителей работать из дома. А ещё из кабинета можно выйти на большую террасу, где вы будете встречать день с чашкой кофе или провожать его, наблюдая закат. И конечно, в доме формата А-фрейм очень много света за счёт широкой площади остекления.

Материал стен: деревянный каркас
Фундамент свайный
Перекрытия: деревянные балки
Материал кровли: фальцевая кровля
Наружная отделка: окраска, вагонка
Высота первого этажа 2905 мм.
Высота второго этажа 2985 мм.
Высота чердака 2700 мм.
Общая высота дома 12180 мм.

Готовые дома

Хотите посетить лично?

Мы покажем вам строительство на любом интересующем вас этапе, чтобы вы могли оценить наше качество.

Аккредитованы в ведущих банках

Корзина
Ваша корзина пуста
Выберите в каталоге интересующий товар и нажмите кнопку "В корзину"
Отложенные товары
Отложенных товаров нет
Выберите в каталоге интересующий товар и нажмите кнопку "В избранное"
Заказать звонок