Проекты домов Оформить
ипотеку
Стройматериалы Участки Строительство
Выберите свой регион строительства
Крымский федеральный округ
Крым
Close mobile menu

Характеристики дома:

Площадь дома

191 m2

Кол-во жилых комнат

4
Стоимость проекта АР+КР
46,000 ₽

Хотите изменить планировку?

Отправьте запрос архитектору и обсудите с ним ваши идеи по перепланировке.

О проекте

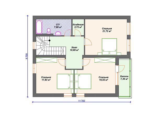
S4-191 (К-268) Дом общей площадью 191 кв м. Габариты дома (по краям) -10.00х12.00 м. Дом двухэтажный, прямоугольной формы. Выполнен из газобетона с комбинированной отделкой штукатуркой и облицовочной плиткой. Перегородки в доме выполнены из деревянного каркаса. Строительство здания осуществляется на монолитной плите. Перекрытия 1эт - по плите, 2эт - деревянные лаги. Покрытие кровли - металлочерепица. Второй этаж у дома мансардный. Конструкция крыши - простая двускатная со слуховым окном в районе спален на 2 этаже. Вход в дом осуществляется через крыльцо, крытое односкатной крышей. Попадаем в тамбур, площадью 5 кв м, в котором можно разместить гардеробный шкаф. Далее при выходе из тамбура в холле с левой стороны размещена гостевая комната, которую можно использовать и в качестве, например, кабинета. В конце холла расположены небольшой санузел (5 кв м) и котельная, разработанная под газовое оборудование с отдельным выходом на улицу. Кухня и гостиная в доме расположены в правой части дома и разделены между собой стеной. Кухня довольно большая - 22 кв м, в ней удобно разместить большой обеденный стол. Освещается кухня с помощью больших окон (3 шт). Из кухни предусмотрен выход на террасу, площадью 14 кв м. Гостиная в доме небольшая - 17 кв м, практически квадратной формы - удобная, но для небольших компаний. На 2 этаж поднимаемся по п-образной лестнице с забежными ступенями. Попадаем в просторный холл, из которого ведут двери в 3 комфортные по форме и площади спальни (18, 19,5 и 22 кв м), а также в санузел в 8 кв м и маленькую кладовую. Дом прекрасно подойдет для постоянного проживания семьи из 4-5 человек.

Аккредитованы в ведущих банках

Корзина
Ваша корзина пуста
Выберите в каталоге интересующий товар и нажмите кнопку "В корзину"
Отложенные товары
Отложенных товаров нет
Выберите в каталоге интересующий товар и нажмите кнопку "В избранное"
Заказать звонок