Проекты домов Оформить
ипотеку
Стройматериалы Участки Строительство
Выберите свой регион строительства
Крымский федеральный округ
Крым
Close mobile menu

Характеристики дома:

Площадь дома

187 m2

Кол-во жилых комнат

5
Стоимость проекта АР+КР
58,100 ₽

Хотите изменить планировку?

Отправьте запрос архитектору и обсудите с ним ваши идеи по перепланировке.

О проекте

S3-187-4(Z 18 K)- проект этого дома сразу бросается в глаза из-за своего необычного экстерьера. Сложная геометрия кровли, балконы и входная группа – всё это привлекает внимание к этому коттеджу. Он идеально подойдет для проживания семьи из 4-5 человек.

Первый этаж традиционно отведен под дневную зону дома. Просторная гостиная совмещена с частично закрытой кухней-столовой. В гостиной установлен двойной камин. Помимо того, что он дешевле в установке, такой камин еще и будет дарить уют и тепло не только в помещении гостиной, но и на террасе. Кстати, на террасу, прекрасно подходящую для комфортного отдыха на свежем воздухе, можно попасть прямо из гостиной. На первом этаже спроектированы санузел и дополнительная комната, которая по Вашему усмотрению может быть оборудована в кабинет или полноценную спальную комнату.

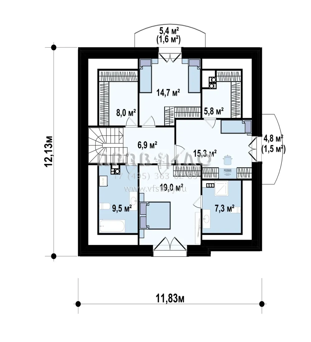
Мансардный этаж дома – это ночная зона. Здесь Вы найдете три спальные комнаты, две ванные комнаты и два просторных гардероба. Конечно, несомненным преимуществом данного проекта является наличие двух балконов, выходы на которые организованы прямо из двух спальных комнат.

Дизайн интерьера

Понравился этот дом?

Отправьте нам сообщение, и мы ответим на все интересующие вас вопросы.

Аккредитованы в ведущих банках

Корзина
Ваша корзина пуста
Выберите в каталоге интересующий товар и нажмите кнопку "В корзину"
Отложенные товары
Отложенных товаров нет
Выберите в каталоге интересующий товар и нажмите кнопку "В избранное"
Заказать звонок