Проекты домов Оформить
ипотеку
Стройматериалы Участки Строительство
Выберите свой регион строительства
Крымский федеральный округ
Крым
Close mobile menu

Характеристики дома:

Площадь дома

152 m2

Кол-во жилых комнат

5
Стоимость проекта АР+КР
45,000 ₽

Хотите изменить планировку?

Отправьте запрос архитектору и обсудите с ним ваши идеи по перепланировке.

О проекте

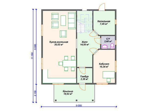
S4-152 (И-037) -дом общей площадью - 152 кв м. Габариты дома (без крыльца)- 9.00х9.00 м. Дом квадратной формы формы, для постоянного проживания, выполнен из деревянного каркаса. Наружная отделка стен - сайдинг. Конструкция крыши у дома -двухскатная. Строительство здания осуществляется на винтовых сваях. Перекрытия - деревянные лаги. Покрытие кровли - металлочерепица. Вход в дом осуществляется с крыльца 10.5 кв м и попадаем в тамбур. Из тамбура проходим в холл 14.5 кв м прямоугольной формы. В доме гардеробной не предусмотрено, поэтому можно в тамбуре по правой стороне разместить небольшой шкаф (вешалки) для верхней одежды. Место по проекту предусмотрено. Проходим далее в холл, в котором правая половина дома это - кабинет 10 кв м, с/у 2.6 кв м и котельная. Котельная для отопления дома запроектирована под газовое оборудование. Левую половину дома занимает одно просторное помещение 35 кв м - это кухня-гостиная. Второй этаж мансардный, поднимаемся на него по п-образной лестнице с узким длинным окном, благодаря которому лестница освещается естественным светом. На этаже размещены три спальни 15-16 кв м, кладовая и с/у 6 кв м. Дом простой, с невысокой мансардой, что очень экономит материал, а значит и деньги на строительство и в будущем на обслуживание этого дома. Каркасный дом подойдет в качестве эконом-варианта для проживания семьи из 4 человек.

Аккредитованы в ведущих банках

Корзина
Ваша корзина пуста
Выберите в каталоге интересующий товар и нажмите кнопку "В корзину"
Отложенные товары
Отложенных товаров нет
Выберите в каталоге интересующий товар и нажмите кнопку "В избранное"
Заказать звонок