Проекты домов Оформить
ипотеку
Стройматериалы Участки Строительство
Выберите свой регион строительства
Крымский федеральный округ
Крым
Close mobile menu

Характеристики дома:

Площадь дома

187 m2

Кол-во жилых комнат

6+
Стоимость проекта АР+КР
61,700 ₽

Хотите изменить планировку?

Отправьте запрос архитектору и обсудите с ним ваши идеи по перепланировке.

О проекте

S3-187-2 (ZX38) - Большой прямоугольный дом, построенный по этому проекту, можно посоветовать любителям современных трендов в архитектуре. Им определенно придется по вкусу стиль оформления фасадов и фронтонов, а также необычное проектировочное решение мансардной крыши. 
За что еще можно высоко оценить этот проект? Во-первых, гараж на одну машину, из которого легко попасть прямо в прихожую, не выходя на улицу. Во-вторых, две кладовые на первом этаже, в одной из которых можно хранить кухонные припасы. В-третьих, отдельный кабинет для любителей вести дела из дома. 
Чтобы не делать помещения тесными, архитекторы выбрали открытую планировку кухни и гостиной. Благодаря этому комната получилась светлой и уютной. Особенно если зажечь огонь в камине или открыть двери на примыкающую веранду. 
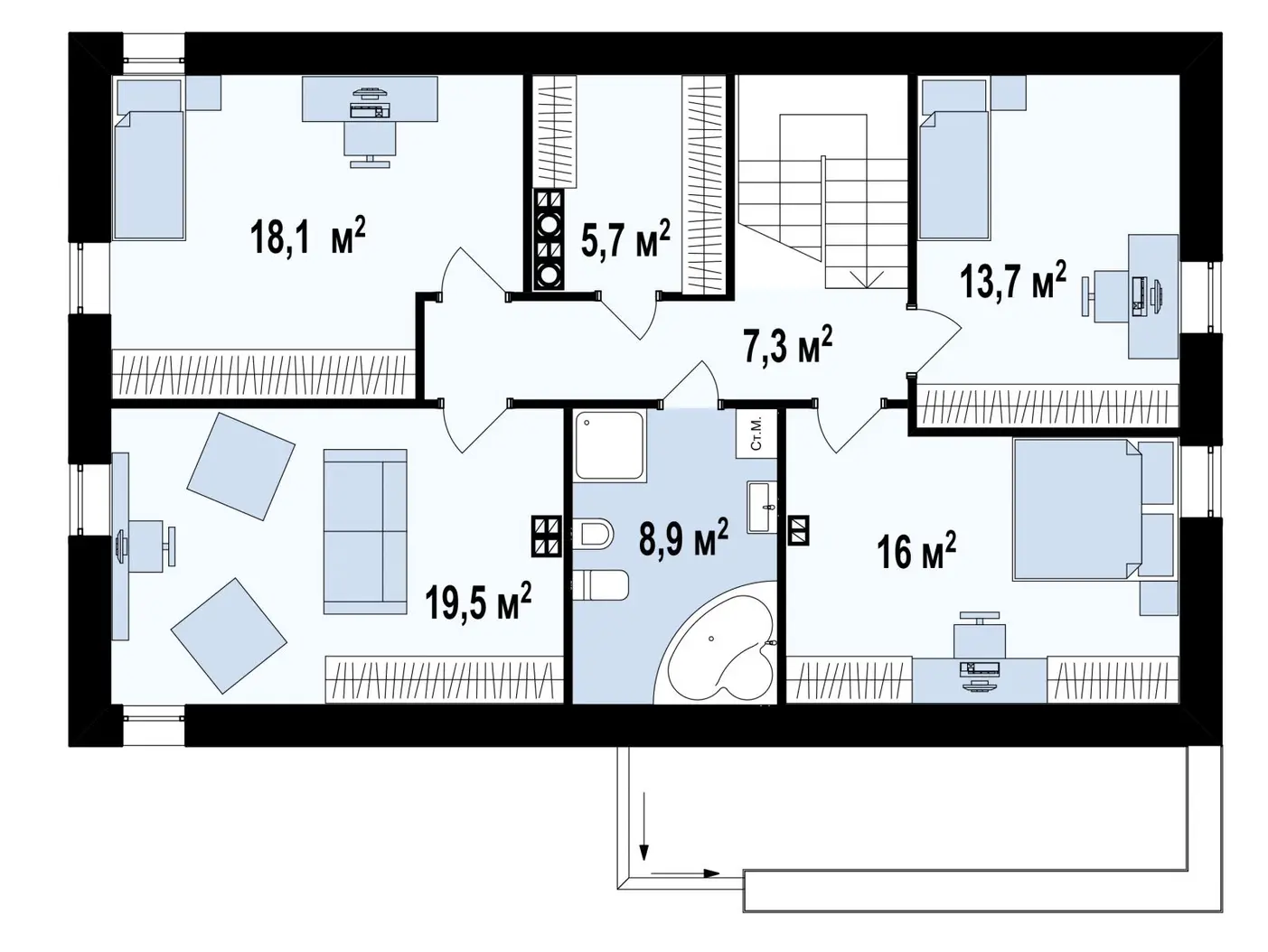
Второй этаж — место для сна. С этой целью здесь предусмотрено четыре жилые комнаты. Их функции можно менять по желанию владельца. Есть также большая ванная и отдельная гардеробная для всех жильцов. 

Аккредитованы в ведущих банках

Корзина
Ваша корзина пуста
Выберите в каталоге интересующий товар и нажмите кнопку "В корзину"
Отложенные товары
Отложенных товаров нет
Выберите в каталоге интересующий товар и нажмите кнопку "В избранное"
Заказать звонок