Проекты домов Оформить
ипотеку
Стройматериалы Участки Строительство
Выберите свой регион строительства
Крымский федеральный округ
Крым
Close mobile menu

Характеристики дома:

Площадь дома

221 m2

Кол-во жилых комнат

4
Стоимость проекта АР+КР
38,000 ₽

Хотите изменить планировку?

Отправьте запрос архитектору и обсудите с ним ваши идеи по перепланировке.

О проекте

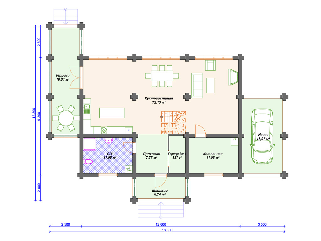
Проект деревянного дома ДО-010.
Интересный дом из бревна диаметром 260 мм, габаритами 13.8х18.6 м.

Просторный дом с большими окнами и очень большой кухней-гостиной. На втором этаже - второй свет, три спальни и большой санузел. В доме навес на одну машину и небольшая терраса.

Он подойдет для людей, любящих простор, свободу в интерьере и много света в помещениях.

Аккредитованы в ведущих банках

Корзина
Ваша корзина пуста
Выберите в каталоге интересующий товар и нажмите кнопку "В корзину"
Отложенные товары
Отложенных товаров нет
Выберите в каталоге интересующий товар и нажмите кнопку "В избранное"
Заказать звонок